L22 2AU - 3 bedroom semidetached house for sale in Lichfield Avenue,…

View on Property Piper

3 bedroom semi-detached house for sale in Lichfield Avenue, Liverpool, L22

Summary - 2, LICHFIELD AVENUE, LIVERPOOL L22 2AU

3 bed 1 bath Semi-Detached

Chain-free 3-bed semi with garden, parking potential and scope to extend.
Chain-free three-bedroom semi-detached home (freehold)
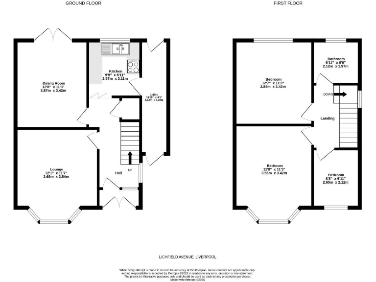
Set on a popular L22 avenue, this bay-fronted semi offers a practical three-bedroom layout and genuine scope to improve. The house is chain-free and freehold, making it straightforward for buyers who want to move quickly or start an investment project. Rooms are modestly proportioned (c. 796 sqft overall) with period character such as bay windows and picture rails.

The property benefits from a good-sized rear garden and a paved side driveway that offers the possibility of formal off-street parking. There is clear potential to extend or convert the loft (subject to consent), allowing significant added living space and value upside for growing families or buy-to-let purchasers.

Buyers should expect some updating: the home dates from the 1930s, has solid brick walls (no confirmed insulation), and interiors are dated in places. There is a single family bathroom and mid-century fittings, so a light refurbishment or targeted improvements to heating, insulation and finishes will be required to modernise the property and improve energy performance.

Practical positives include mains gas central heating, double glazing (installation date unknown), low local crime, fast broadband and excellent mobile signal. The location is near good schools and local amenities, making it well suited to families or investors seeking a refurbishment project in a stable suburban area.

Property Details

Brochure Descriptions

Image Descriptions

Floorplan Description

Rooms

Textual Property Features

Target Audience

AI Tags

Detected Visual Features

EPC Details

Nearby Schools

Nearest Bars And Restaurants

,,,,}

Nearest General Shops

,,}

Nearest Grocery shops

,,}

Nearest Supermarkets

,,}

Nearest Religious buildings

,,}

Nearest Medical buildings

,,,}

Nearest Airports

}

Nearest Leisure Facilities

,,,,}

Nearest Tourist attractions

,,}

Nearest Train stations

,,,,}

Nearest Bus stations and stops

,,,,}

Nearest Hotels

,,}

Tags

Local Market Stats

AirBnB Data

Similar Properties

Meta

High Res Images

Compatible Images

Low res Images

Thumbnails

Raw Images

High Res Floorplan Images

Compatible Floorplan Images

Low res Floorplan Images

FloorplanImages Thumbnail

Raw Floorplan Images