Single-level home with large garden, garage and versatile workshop annexe potential.
Recently modernised throughout, ready to move into
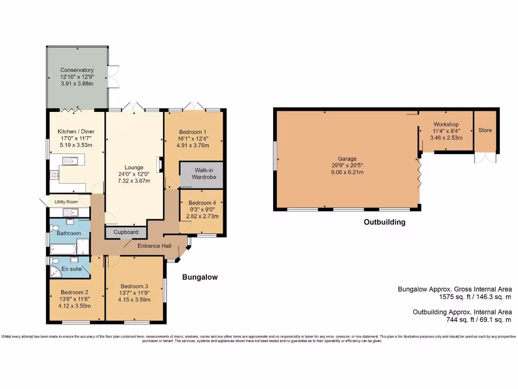
This recently modernised four-bedroom detached bungalow offers comfortable single-level living on a generous, flat plot in a private road. The heart of the home is a sociable open-plan kitchen, dining and conservatory with underfloor heating, linked to a large 24ft lounge with a feature brick fireplace and wood-burning stove. The principal bedroom includes an ensuite and walk-in wardrobe; all four bedrooms are good-sized doubles, arranged for easy family use.
Outside, the south-west facing garden is large and level with defined areas, a patio, productive vegetable beds and a nature pond — ideal for children and outdoor entertaining. A wide block-paved driveway provides multiple parking spaces and leads to a larger-than-double garage with an attached workshop and side store. That outbuilding has potential for ancillary accommodation or a home business, subject to change of use, planning and building-regulation approval.
Practical details are straightforward: the property is freehold, has mains gas central heating with a boiler and radiators, double glazing installed after 2002, no identified flood risk, excellent mobile signal and fast broadband. Notable negatives include an EPC rating of D, cavity walls assumed to have no insulation (buyer to verify), and above-average council tax banding. Overall, this bungalow suits families or buyers wanting single-floor, modern living with flexible outbuilding options in a commuter-friendly village location.
4 bedroom bungalow for sale in Millfield Road, West Kingsdown, Sevenoaks, Kent, TN15 — £675,000 • 4 bed • 2 bath • 1402 ft²
5 bedroom detached bungalow for sale in Hever Road, West Kingsdown, TN15 — £750,000 • 5 bed • 2 bath • 1724 ft²
4 bedroom bungalow for sale in Kings Road, Biggin Hill, Westerham, TN16 — £500,000 • 4 bed • 1 bath • 1144 ft²
4 bedroom bungalow for sale in Botsom Lane, West Kingsdown, Sevenoaks, Kent, TN15 — £825,000 • 4 bed • 2 bath • 1603 ft²
4 bedroom bungalow for sale in Hollywood Lane, West Kingsdown, Sevenoaks, Kent, TN15 — £670,000 • 4 bed • 2 bath • 2173 ft²
4 bedroom detached bungalow for sale in Mill Croft, Crowhurst Lane, West Kingsdown, Sevenoaks, Kent, TN15 — £625,000 • 4 bed • 2 bath • 1768 ft²


















































































































































