IG4 5HQ - 3 bedroom semidetached house for sale in Danehurst Gardens,…

View on Property Piper

3 bedroom semi-detached house for sale in Danehurst Gardens, Ilford, Essex, IG4

Summary - 52 DANEHURST GARDENS ILFORD IG4 5HQ

3 bed 1 bath Semi-Detached

Period three-bed near Redbridge station — scope to extend and add value..
- Three-bedroom Tudor‑Revival semi with period bay windows
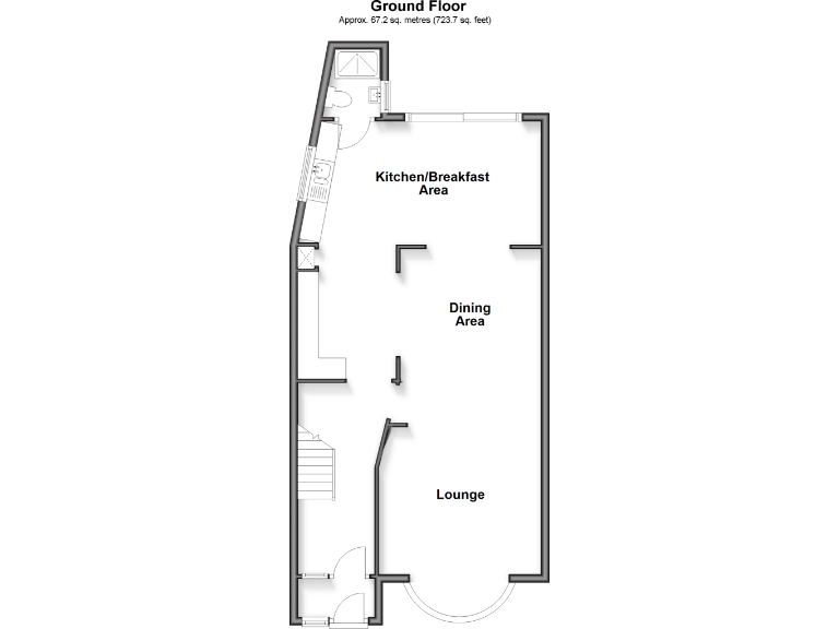
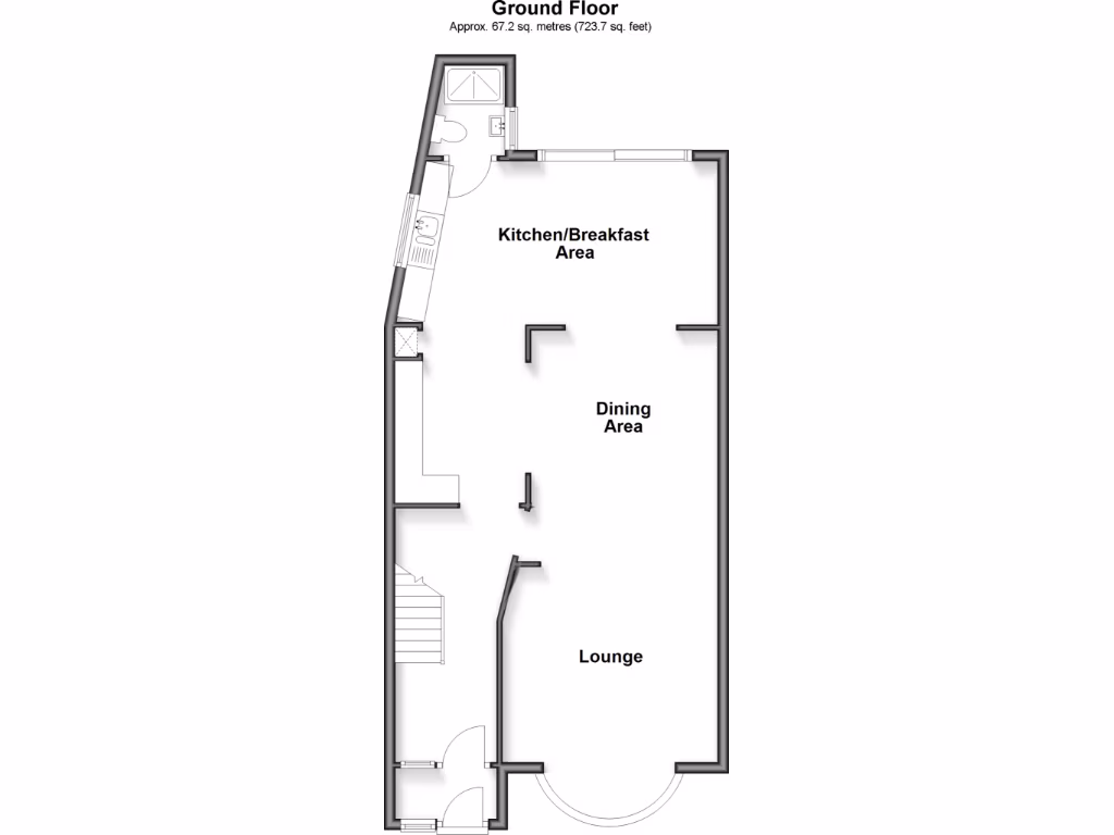
- Large open lounge and dining space, nearly 30ft combined
- Contemporary kitchen/breakfast room with integrated appliances
- Garage, side access and off‑street parking on a decent plot
- Walking distance to Redbridge Central Line station and schools
- Potential to extend, subject to planning permission
- Solid brick (pre‑insulation) — likely requires thermal upgrades
- Council tax above average; property needs some modernization
Set on a broad plot in Redbridge, this 1930s Tudor‑Revival semi offers generous family living and clear scope to add value. The ground floor opens into an extended lounge and dining run totalling nearly 30ft in the reception, with a bright contemporary kitchen/breakfast room to the rear and side access to a decent-sized garden.

Practical features include off-street parking, a garage, mains gas boiler and double glazing. The house sits close to Redbridge Central Line station and several well‑rated schools, making daily commutes and school runs straightforward for families. Broadband and mobile signals are strong in this very affluent neighbourhood with low local crime.

The property will suit buyers looking for period character with renovation potential. Solid brick walls were built before insulation standards changed, and the house requires modernization in places despite the modern kitchen. There is potential to extend subject to planning consent, which could increase space and value.

Important notes: tenure is freehold and council tax is above average. The price reflects a home with good bones and improving potential but some refurbishment and confirmation of services and consents will be needed before onward work.

Property Details

Image Descriptions

Floorplan Description

Rooms

Textual Property Features

Target Audience

AI Tags

Detected Visual Features

EPC Details

Nearby Schools

Nearest Bars And Restaurants

,,,,}

Nearest General Shops

,,}

Nearest Grocery shops

,,}

Nearest Supermarkets

,,}

Nearest Religious buildings

,,}

Nearest Medical buildings

,,,}

Nearest Airports

,}

Nearest Leisure Facilities

,,,,}

Nearest Tourist attractions

,,}

Nearest Train stations

,,,,}

Nearest Bus stations and stops

,,,,}

Nearest Hotels

,,}

Tags

Local Market Stats

AirBnB Data

Similar Properties

Meta

High Res Images

Compatible Images

Low res Images

Thumbnails

Raw Images

High Res Floorplan Images

Compatible Floorplan Images

Low res Floorplan Images

FloorplanImages Thumbnail

Raw Floorplan Images