Spacious family home with garage, garden and strong connectivity.
Detached four-bedroom villa with integral garage and two-car driveway
South‑west facing rear garden with afternoon sun
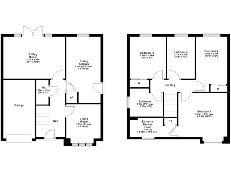
Dining kitchen over 17 feet with integrated appliances
Master bedroom with generous en suite shower room
Gas central heating, double glazing, NHBC balance (built 2016)
Approx 1,345 sq ft — average sized family layout
Excellent mobile signal and fast broadband throughout
Local area shows high deprivation; council tax is expensive
Set in a small cul-de-sac, this modern four-bedroom detached villa built in 2016 offers spacious family living with practical, low-maintenance finishes. A long reception hallway leads to a sitting room with French doors onto a south‑west facing lawned garden, plus a flexible dining/family room that could serve as a home office. The dining-sized kitchen is over 17 feet and includes integrated appliances and a useful storage cupboard.
Upstairs are four bedrooms, two with fitted robes, and a generous master with an en suite shower room. The large family bathroom has space to add a separate shower if required. Practical comforts include gas central heating, double glazing, timber laminate flooring and the balance of the NHBC 10-year warranty.
Outside, a two-car wide block-paved driveway provides access to an integral garage; the private rear garden receives good afternoon sun. Connectivity is strong with excellent mobile signal and fast broadband. The property is freehold and accommodates an average overall size of about 1,345 sq ft — suited to growing families or buyers seeking a modern, low-maintenance home.
Note: the local area is classified as having high deprivation and council tax is described as expensive; prospective buyers should consider these local cost implications. No flood risk is recorded.
4 bedroom detached house for sale in 9 Anderson Gardens, Maddiston, FK2 — £265,000 • 4 bed • 3 bath • 1130 ft²
4 bedroom villa for sale in Yardley Place, Falkirk, FK2 — £244,000 • 4 bed • 2 bath • 1130 ft²
4 bedroom detached house for sale in Standalane, Kincardine, Alloa, Fife, FK10 — £285,000 • 4 bed • 3 bath • 1272 ft²
4 bedroom villa for sale in Queens Drive, Falkirk, FK1 — £310,000 • 4 bed • 2 bath • 1163 ft²
4 bedroom detached house for sale in Epworth Gardens, Reddingmuirhead, FK2 — £270,000 • 4 bed • 3 bath • 1291 ft²
4 bedroom detached house for sale in 17 Sunnyside Avenue, FK2 0GE, FK2 — £339,000 • 4 bed • 4 bath • 1558 ft²






























































