Tenant in situ — immediate rental income potential
No onward chain — quicker completion possible
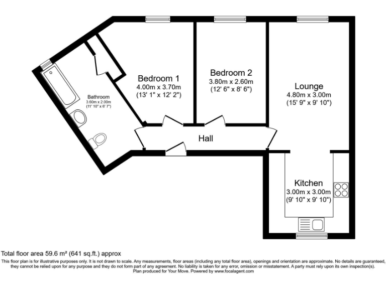
Two bedrooms, approx. 641 sq ft — practical rental layout
Leasehold with ~105 years remaining — check ground rent terms
Annual service charge approx. £1,600 — affects net yield
Electric storage/room heaters — higher running costs than gas
Off-street residents’ parking and double glazing — tenant conveniences
EPC C and Council Tax Band B — acceptable for lettings
Offered with a tenant in situ and no onward chain, this two-bedroom flat in The Gatehouse, Darlington, presents a straightforward purchase for investors seeking rental income. The apartment sits within a modern development (constructed 2003–2006), offers double glazing, and an open-plan lounge/diner with a fitted kitchen. Off-street residents’ parking and an EPC grade C add practical appeal for lettings.
The property is leasehold with around 105 years remaining and an average service charge of £1,600 per year—important running costs to factor into yield calculations. Heating is by electric storage/room heaters; this keeps installation simple but can mean higher ongoing energy costs compared with gas. Council Tax Band B and an EPC C support lettability in the local market.
At about 641 sq ft, the flat is an average-sized two-bedroom layout that suits sharers, small families or single professionals. The surrounding area scores highly for affluence and has good local amenities, schools rated Good, reliable mobile signal and average broadband speeds. There is no flood risk and crime levels are average for a city location.
This is a pragmatic buy for an investor focused on a low-complexity acquisition: tenant already in place, immediate rental income, and a modern build with limited near-term major works expected. Be aware of the service charge, electric heating running costs, and standard leasehold considerations when assessing net returns.







































