Substantial equestrian home with planning permission, 4.2 acres and exceptional character.
- Sandstone barn conversion with vaulted ceilings and original King post trusses
- Large plot of about 4.2 acres with pond and open countryside views
- Excellent equestrian facilities: Dutch barn, five stables, ménage and paddocks
- High-spec Clive Christian kitchen and luxury principal ensuite
- Triple detached garage and large additional garden store; annex potential
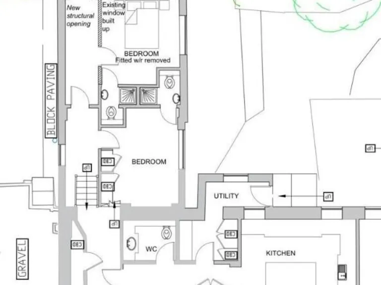
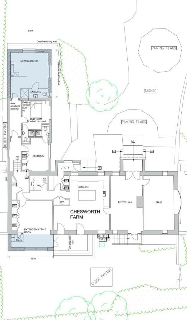
- Planning permission granted for two-storey extension to add bedroom space
- LPG central heating (private supply) and assumed partial wall insulation
- Council Tax Band G; relatively high ongoing running costs
A superb sandstone barn conversion set in about 4.2 acres, Chesworth Farm combines strong period character with contemporary appointments. Vaulted ceilings, exposed King post trusses, oak floors and a high-spec Clive Christian kitchen give the house elegant living spaces arranged over multiple levels. The property includes a triple garage, extensive landscaped gardens with a pond, and open countryside views.
This home is especially well suited to equestrian or country-living families. The large Dutch Barn (73' x 22') contains five stables, tack room, horse shower and extensive parking; there is a Martin Collins sand and fibre ménage (37 x 30m), floodlit mirrors, viewing deck and four railed paddocks with water supplies. Planning permission is already granted for a two-storey extension to enlarge the master suite and add an extra ensuite bedroom, offering clear scope to increase accommodation further.
Practical features include CCTV, comprehensive exterior lighting, LPG boiler central heating, mains water and drainage. The sandstone detached triple garage could be reconfigured as an annex subject to consent. Note the property uses LPG (not a community supply) and some wall insulation is assumed rather than confirmed. Council Tax Band G means running costs are relatively high.
Chesworth Farm occupies a peaceful hamlet location on the village fringe, with good links to Chester and Liverpool, local schools rated Good, and nearby rail connections. For buyers seeking a substantial, characterful home with turn-key equestrian facilities and room to expand, this offers a rare package. Buyers should verify technical details and services through survey and legal enquiries.
4 bedroom barn conversion for sale in Liverpool Road, Neston, CH64 — £1,250,000 • 4 bed • 3 bath • 2709 ft²
6 bedroom detached house for sale in Dunstan Lane, CH64 — £1,500,000 • 6 bed • 3 bath • 4212 ft²
3 bedroom house for sale in Hanns Hall Farm, Willaston, Neston, CH64 — £525,000 • 3 bed • 2 bath • 2117 ft²
4 bedroom barn conversion for sale in Chester High Road, Neston, CH64 — £480,000 • 4 bed • 2 bath • 1409 ft²
4 bedroom detached house for sale in Upper Raby Road, Neston, CH64 — £850,000 • 4 bed • 1 bath • 1615 ft²
4 bedroom barn conversion for sale in Hollow Lane, Kingsley, WA6 — £750,000 • 4 bed • 2 bath • 1195 ft²






















































































































































































