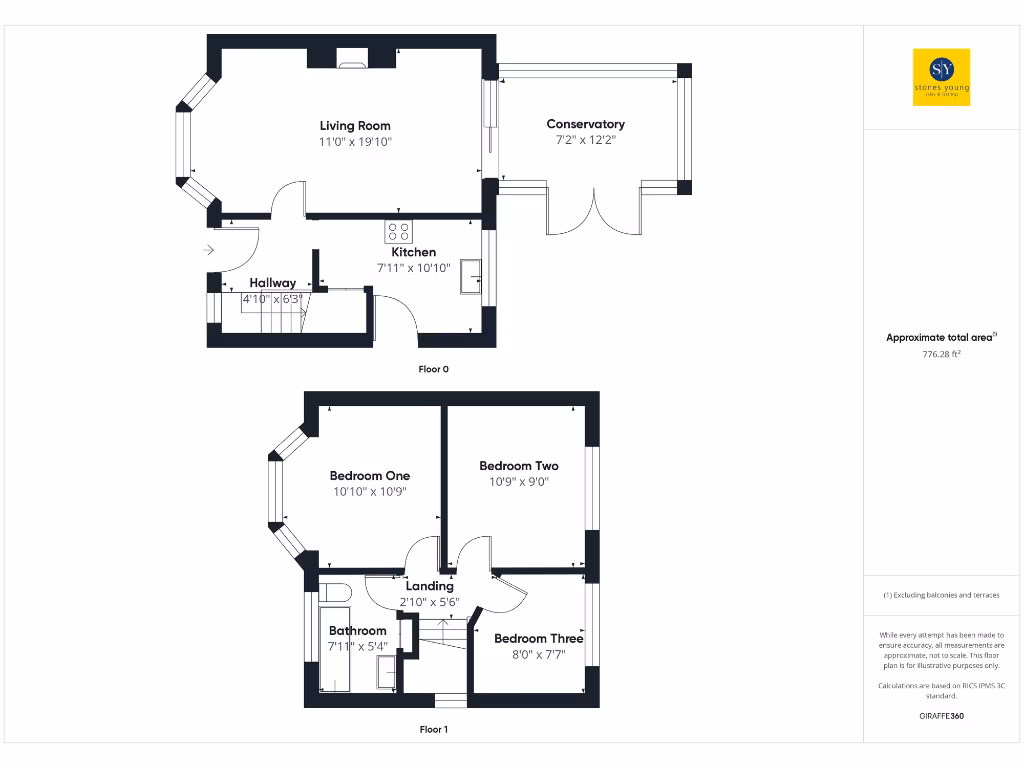
Three-bedroom semi with conservatory, garden and driveway near Blackburn Hospital and good schools.
3 bedrooms: two doubles and one single
Conservatory adds light and extra living space
Kitchen overlooks decent rear garden
Driveway parking for up to two vehicles
Freehold tenure; cheap council tax
Single three-piece bathroom only
Average overall size (~872 sq ft) and medium rooms
Location: cul-de-sac near Blackburn Hospital and M65
This three-bedroom semi-detached home on a quiet cul-de-sac offers practical family living close to Blackburn Hospital and local amenities. The lounge flows to a conservatory that adds light and extra living space, while the kitchen overlooks a decent rear garden ideal for children and gardening. Off-street driveway parking for up to two cars and both front and rear gardens add everyday convenience.
Two double bedrooms plus a single bedroom and a fully tiled three-piece bathroom suit growing families or those needing a home office. The property is freehold, of average overall size (approximately 872 sq ft), and benefits from fast broadband and excellent mobile signal—useful for home working and study. Several well-rated primary and secondary schools are within easy reach.
Location is a strong practical draw: tucked away yet close to the M65, Blackburn town centre and food, retail and takeaway amenities. Council tax is cheap which helps running costs. Be aware the house sits in an area typified by terraces and flats with an “ageing industrious workers” demographic and average local crime; buyers seeking a more prestigious neighbourhood may prefer elsewhere.
The house presents a straightforward, move-in-ready layout with scope to personalise the conservatory, garden and kitchen. Note there is a single bathroom only; families wanting multiple bathrooms or larger rooms should consider whether the space meets long-term needs.
3 bedroom end of terrace house for sale in Walney Gardens, Blackburn, BB2 — £149,950 • 3 bed • 1 bath • 644 ft²
3 bedroom semi-detached house for sale in Wasdale Road, Blackburn, BB1 — £180,000 • 3 bed • 1 bath • 735 ft²
3 bedroom semi-detached house for sale in Old Bank Lane, Blackburn, BB2 — £220,000 • 3 bed • 2 bath
3 bedroom semi-detached house for sale in Old Bank Lane, Blackburn, BB2 — £170,000 • 3 bed • 1 bath • 712 ft²
3 bedroom end of terrace house for sale in Meadowbrook Rise, Nr Royal Blackburn, Blackburn, Lancashire, BB2 — £170,000 • 3 bed • 2 bath • 788 ft²
3 bedroom semi-detached house for sale in Wasdale Avenue, Blackburn, BB1 — £189,950 • 3 bed • 1 bath • 787 ft²


































































