Well-presented four-bed home with garden, garage and conservatory near Fakenham.
Four bedrooms, principal with en-suite
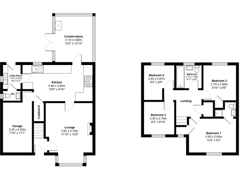
This four-bedroom detached house on the edge of Fakenham offers practical family living with off-road parking, a garage and a private rear garden. The ground floor flows from a front sitting room into a kitchen/dining area and a conservatory that opens onto the garden — useful for everyday family life and entertaining. A utility room and cloakroom add convenience.
Upstairs provides four bedrooms, including a principal with an en-suite, and a family bathroom. The home is described as well presented and benefits from mains services, excellent mobile signal and fast broadband — helpful for homeworking and schooling. The plot is a decent size for the setting and the property carries a freehold tenure.
Notable limitations are factual: the house is relatively compact at about 902 sq ft for four bedrooms, so some rooms may feel small. The area is classified as deprived, which may influence local investment and services. The Energy Performance Certificate is listed as TBC and the services/appliances have not been tested, so buyer surveys are recommended. Council Tax is Band D (moderate). These points should be weighed alongside the low local crime rate and convenient access to Fakenham’s amenities and nearby North Norfolk coast.
4 bedroom detached house for sale in Foxglove Close, Fakenham, Norfolk, NR21 — £325,000 • 4 bed • 1 bath • 1236 ft²
4 bedroom detached house for sale in Mallard Close, Fakenham, NR21 — £343,000 • 4 bed • 3 bath • 1195 ft²
3 bedroom detached house for sale in North Park, Fakenham, Norfolk, NR21 — £270,000 • 3 bed • 1 bath • 1243 ft²
4 bedroom detached house for sale in Driftlands, Fakenham, Norfolk, NR21 — £350,000 • 4 bed • 1 bath • 1373 ft²
3 bedroom link detached house for sale in The Lawn, Fakenham, Norfolk, NR21 — £350,000 • 3 bed • 2 bath • 1477 ft²
4 bedroom detached house for sale in Rudham Stile Lane, Fakenham, Norfolk, NR21 — £425,000 • 4 bed • 1 bath • 1448 ft²


























































































