**Standout Features:**
- Spacious split-level Victorian conversion with three double bedrooms
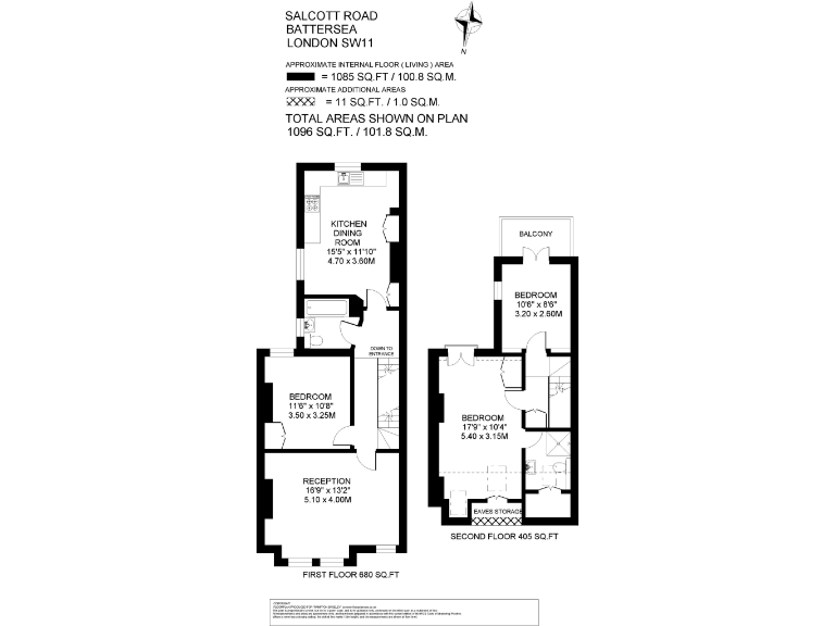
- Approximately 1,085 sq. ft. of living space
- Bright and airy reception room with high ceilings and large windows
- South-facing balcony with charming rooftop views
- Modern kitchen/breakfast area equipped with integrated appliances
- Family bathroom and en suite shower room
- Located in a desirable area between Northcote Road and Webb’s Road
**Potential Concerns:**
- Solid brick walls with assumed no insulation
- Council tax rating: above average
Nestled in the heart of Battersea on Salcott Road, this beautiful three-bedroom upper maisonette offers a perfect blend of modern living and Victorian charm, spread across approximately 1,085 sq. ft. Enjoy the spacious reception room, filled with natural light from its tall windows, alongside traditional features like a fireplace and built-in shelving that create a warm, inviting atmosphere. The modern kitchen/breakfast room is ideal for entertaining and everyday family meals, while a south-facing balcony allows for outdoor relaxation with delightful rooftop views.
Two bedrooms and a contemporary en suite shower room occupy the second floor, ensuring privacy and tranquility. Families will appreciate the proximity to excellent state and private schools and convenient transport links, making this property an ideal opportunity for city dwellers or investors looking for a desirable rental. Despite some areas needing insulation attention, the superb location and stylish finishes provide incredible value. Don't miss your chance to own a slice of comfort in this affluent area; schedule a viewing today!
2 bedroom apartment for sale in Salcott Road, SW11 — £850,000 • 2 bed • 2 bath • 915 ft²
2 bedroom terraced house for sale in Salcott Road, SW11 — £875,000 • 2 bed • 1 bath • 964 ft²
3 bedroom apartment for sale in Salcott Road, SW11 — £995,000 • 3 bed • 2 bath • 841 ft²
3 bedroom apartment for sale in Broomwood Road, SW11 — £1,000,000 • 3 bed • 2 bath • 1241 ft²
2 bedroom apartment for sale in Salcott Road, SW11 — £750,000 • 2 bed • 1 bath • 578 ft²
3 bedroom apartment for sale in Almeric Road, SW11 — £995,000 • 3 bed • 2 bath • 1584 ft²














































