Compact central apartment ideal for short-lets or commuters near the station.
Top-floor position with direct Windsor Castle views (approx 79ft away)
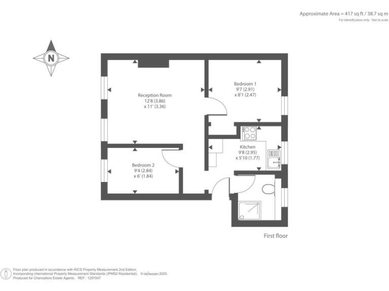
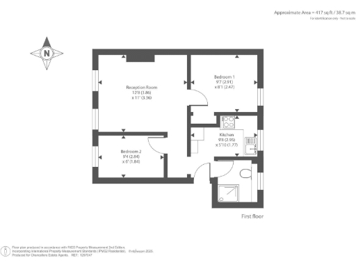
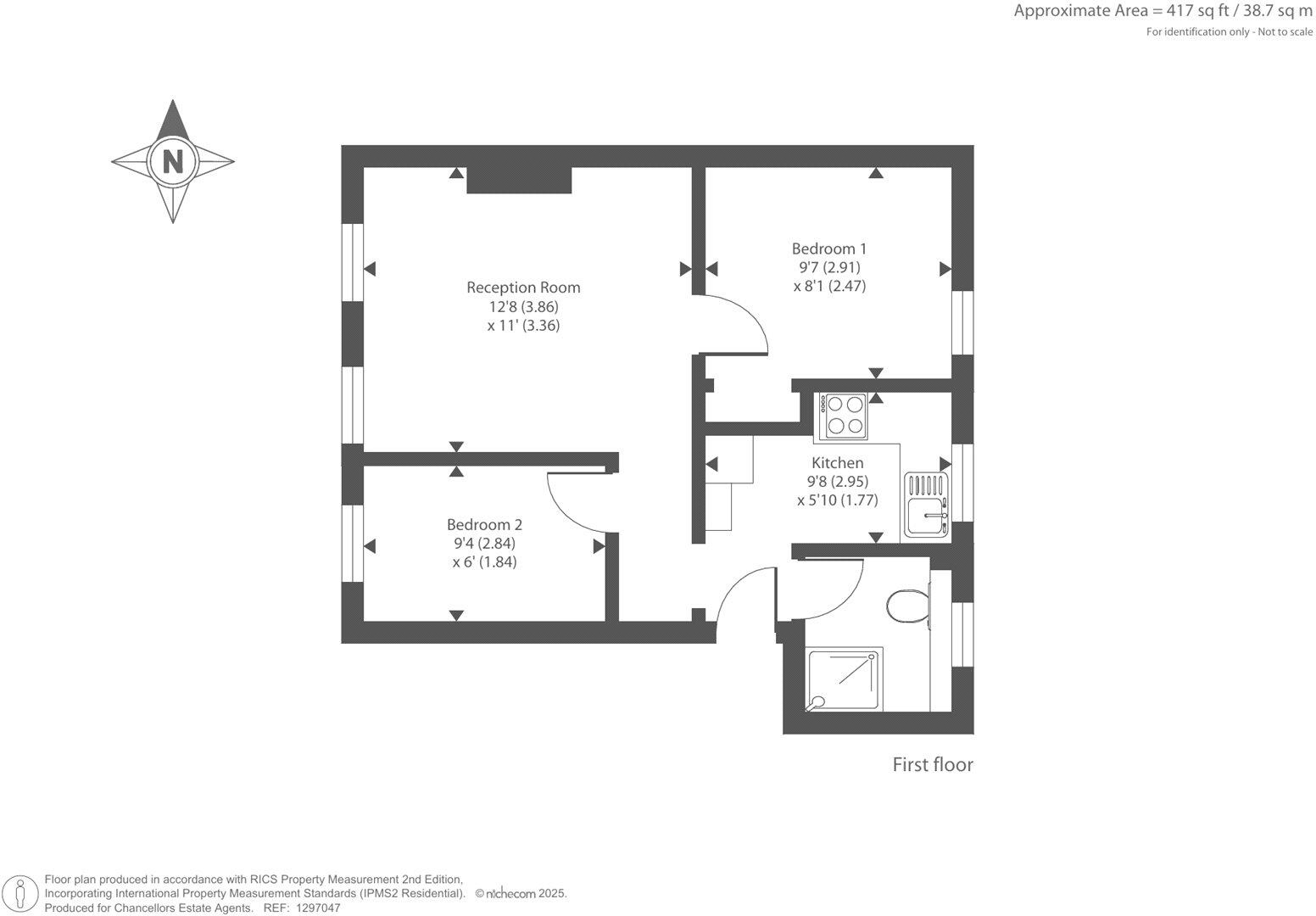
Set on the top floor of a historic Georgian terrace, this compact flat sits just 79ft from Windsor Castle and delivers genuine central-location appeal. The living room benefits from large windows and castle views; the property includes a modern shower room, fitted kitchen and at least one double bedroom. With 417 sqft overall, the apartment is small but desirable for short‑let, second‑home or commuter use given the station and town amenities a short walk away.
Practical strengths include a long lease (106 years remaining), gas central heating with radiators, double glazing (install date unknown) and no flood risk. Broadband speeds are average but mobile signal is excellent — useful for holiday‑let guests and remote working. The building’s solid brick construction and period character contribute to the location’s charm and letting appeal.
Notable drawbacks are its limited internal size and compact layout, which may restrict long‑term family use. The property appears to have solid walls with no assumed cavity insulation, so energy performance and heating costs could be a concern. Crime levels in the immediate area are reported as very high; prospective buyers should assess security and insurance implications. There is also some ambiguity between sources about bedroom count/layout—viewing and floorplan checks are recommended.
This flat will suit an investor or buyer seeking a highly central, characterful pied‑à‑terre or short‑let opportunity rather than someone needing extensive living space. Budget for potential minor upgrades to insulation, security and redecoration to maximise rental returns or personal comfort.
1 bedroom flat for sale in Market Street, Windsor, Berkshire, SL4 — £299,950 • 1 bed • 1 bath • 398 ft²
1 bedroom flat for sale in Market Street, Windsor, Berkshire, SL4 — £299,950 • 1 bed • 1 bath • 398 ft²
2 bedroom apartment for sale in Osborne Road, Windsor, Berkshire, SL4 — £325,000 • 2 bed • 1 bath • 649 ft²
1 bedroom apartment for sale in Church Street, Windsor, Berkshire, SL4 — £375,000 • 1 bed • 1 bath • 418 ft²
2 bedroom apartment for sale in The High Street, Windsor, SL4 — £390,000 • 2 bed • 1 bath • 495 ft²
2 bedroom flat for sale in Bridgewater Terrace, Windsor, SL4 — £225,000 • 2 bed • 1 bath • 667 ft²














































































