Rare lakeside property with flexible planning consent and proven trading history.
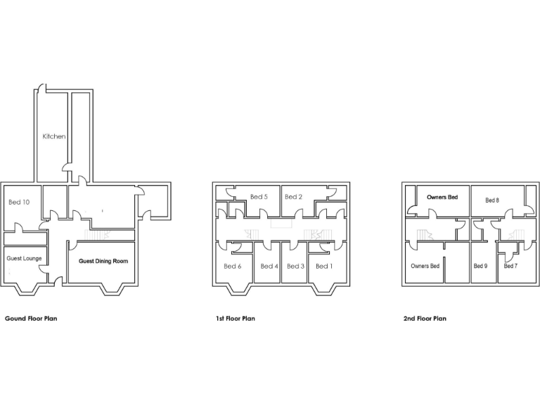
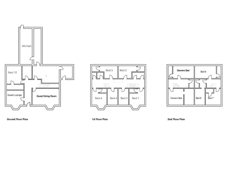
Twelve-bedroom Victorian guest house with strong period features
Ouse Bridge House is a large, Victorian detached guest house set yards from Bassenthwaite Lake within the Lake District National Park. The property offers twelve bedrooms (nine traded for guests, three used by owners), many with ensuite facilities and seven with lake views. Ample private parking for around a dozen cars and a substantial rear garden with patio and fruit trees support both guest operations and family life.
The property is offered with planning consent to operate as a guest house, a self-contained holiday let or a permanent residence, giving a buyer operational flexibility. Internally the house retains strong period character: high ceilings, large bay windows and an impressive hallway and staircase. The ground floor includes a large 18-cover breakfast room, guest lounge, accessible ground-floor bedroom, substantial owners’ lounge and a well-equipped commercial-style kitchen.
Material considerations include an Energy Rating of D, main heating from bottled LPG via boiler and radiators, slow broadband and assumed uninsulated stone walls. There is medium flood risk for the area. The building is presented as a proven, owner-operated lifestyle business with established bookings and the potential to target significantly higher gross income if repositioned as a holiday let. Buyers should budget for energy upgrade works and plan infrastructure improvements if higher-margin online bookings are targeted.
12 bedroom detached house for sale in Ouse Bridge House, Dubwath,Bassenthwaite Lake, Keswick, Cumbria, CA13 9YD, CA13 — £875,000 • 12 bed • 1 bath
7 bedroom guest house for sale in Bassenthwaite Lake, Cockermouth, CA13 — £895,000 • 7 bed • 9 bath
7 bedroom house for sale in Bassenthwaite Lake, Cockermouth, CA13 — £895,000 • 7 bed • 9 bath
7 bedroom guest house for sale in Maple Bank Country Guest House Braithwaite KESWICK Cumbria CA12 5RY Unit, CA12 — £835,000 • 7 bed • 1 bath
6 bedroom guest house for sale in Penrith Road, Keswick, CA12 — £650,000 • 6 bed • 6 bath • 6028 ft²
7 bedroom detached house for sale in Maple Bank Guest House, Braithwaite, Keswick, CA12 5RY, CA12 — £835,000 • 7 bed • 1 bath






































































































































































































































