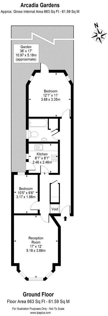
**Standout Features:**
- 2 spacious bedrooms
- Modern bathroom
- Bright reception room
- Charming garden
- Share of freehold tenure
- Convenient access to transport links and local amenities
- Victorian terraced house with attractive red brickwork
**Summary:**
Discover the inviting Flat A in Arcadian Gardens, a cozy two-bedroom flat ideal for first-time buyers or small families seeking comfort and convenience in bustling London. This charming residence blends modern living with classic Victorian architecture, featuring a bright and spacious reception room perfect for relaxation or entertaining, and a well-appointed bathroom designed for ease of use. 
While the flat's average size is complemented by a modest garden, ideal for small outdoor gatherings, its prime location offers a wealth of nearby amenities, parks, and excellent transport links, ensuring you can enjoy the best of city living. With top-rated schools in the vicinity, including Earlham Primary and St Thomas More Catholic School, this area is perfect for families. Viewing is highly recommended to appreciate the unique potential and comfort this flat has to offer, especially as opportunities like this in such a desirable neighborhood are quickly claimed. Embrace a lifestyle of tranquility blended with vibrant city energy at Flat A.
 2 bedroom flat for sale in Arcadian Gardens, Wood Green, London, N22 — £425,000 • 2 bed • 1 bath • 635 ft²
 2 bedroom flat for sale in Arcadian Gardens, Wood Green, London, N22 — £425,000 • 2 bed • 1 bath • 635 ft² 2 bedroom flat for sale in Blackstock Road, N4 2JW, N4 — £550,000 • 2 bed • 1 bath • 530 ft²
 2 bedroom flat for sale in Blackstock Road, N4 2JW, N4 — £550,000 • 2 bed • 1 bath • 530 ft² 2 bedroom flat for sale in Chilton Court, N22 — £550,000 • 2 bed • 1 bath • 827 ft²
 2 bedroom flat for sale in Chilton Court, N22 — £550,000 • 2 bed • 1 bath • 827 ft² 2 bedroom flat for sale in Farnborough Avenue, Walthamstow, E17 — £425,000 • 2 bed • 1 bath • 476 ft²
 2 bedroom flat for sale in Farnborough Avenue, Walthamstow, E17 — £425,000 • 2 bed • 1 bath • 476 ft² 2 bedroom flat for sale in Warwick Gardens, Harringay, London, N4 — £500,000 • 2 bed • 1 bath • 618 ft²
 2 bedroom flat for sale in Warwick Gardens, Harringay, London, N4 — £500,000 • 2 bed • 1 bath • 618 ft² 2 bedroom flat for sale in St John's Road, South Tottenham, London, N15 — £500,000 • 2 bed • 1 bath • 694 ft²
 2 bedroom flat for sale in St John's Road, South Tottenham, London, N15 — £500,000 • 2 bed • 1 bath • 694 ft²


























































