Charming two-bedroom cottage ideal for easy village living and simple downsizing.
• Grade II listed mid-terrace cottage with strong period character
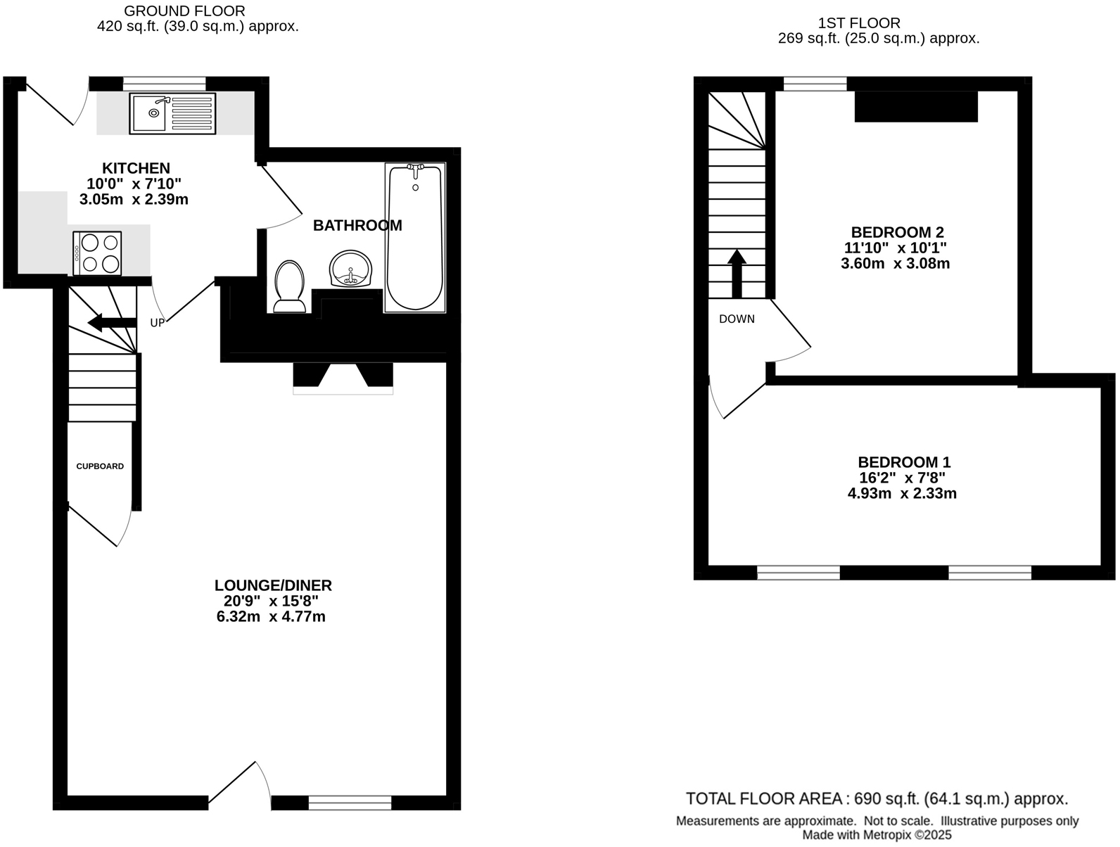
• Two bedrooms, open-plan lounge/diner, circa 690 sq ft
• Gas central heating; double glazing installed pre-2002
• Small front garden; right of access to rear courtyard only
• On-street parking; council tax Band B (relatively cheap)
• Medium flood risk — impacts insurance and mitigation needs
• Listed status restricts alterations and may increase refurbishment costs
• Fast fibre broadband and excellent mobile signal
Tucked in the heart of Woodbury, this Grade II listed mid-terrace cottage offers period character in a compact, manageable footprint. Exposed beams, sash-style windows and two comfortable bedrooms provide a cosy base suited to those looking to downsize without losing traditional charm. The open-plan lounge/diner and cottage-style shaker kitchen create an inviting living space arranged over two floors.
Practical benefits include gas central heating, double glazing (installed before 2002), fast fibre broadband and excellent mobile signal — useful for home working or staying connected. The front garden is low-maintenance, with planted beds and a paved seating area; there is right of access to the rear courtyard but no private rear garden. On-street parking is available nearby.
Buyers should note material considerations: the property’s Grade II listed status will affect any external or structural alterations and may add cost or delay to refurbishment plans. The cottage sits in a medium flood-risk zone, which is important for insurance and mitigation planning. The plot is small and the overall internal space is modest (about 690 sq ft), so storage and garden expectations should be realistic.
This home will suit a downsizer or couple seeking village life close to shops, pubs and a well-regarded primary school, who value character and a low-maintenance plot. It also offers sensible potential for sympathetic updating where permitted by the listing restrictions.
2 bedroom cottage for sale in Thyme Cottage, Village Road, Woodbury Salterton, EX5 — £380,000 • 2 bed • 1 bath • 873 ft²
2 bedroom cottage for sale in Greenway, Woodbury, Exeter, EX5 — £265,000 • 2 bed • 1 bath • 476 ft²
3 bedroom cottage for sale in Town Lane, Woodbury, EX5 — £350,000 • 3 bed • 1 bath • 726 ft²
2 bedroom semi-detached house for sale in Globe Hill, Woodbury, EX5 — £240,000 • 2 bed • 1 bath • 462 ft²
3 bedroom terraced house for sale in Woodbury, Devon, EX5 — £325,000 • 3 bed • 1 bath • 935 ft²
3 bedroom semi-detached house for sale in Greenway, Woodbury, EX5 — £350,000 • 3 bed • 2 bath • 889 ft²






































































