Period two-bedroom cottage, commuter-friendly, southerly garden and no onward chain..
No onward chain, ready for quick completion
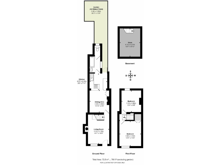
Circa 1780 cottage with stripped wood floors and period doors
32ft southerly low-maintenance garden, built-in seating
Convenient for Hampton Court station and London Waterloo commute
Useful cellar for storage
Solid brick walls assumed uninsulated — improvement likely needed
Small plot and mid-terrace footprint restricts expansion
Local crime reported above average — consider security measures
This charming two-bedroom cottage in the heart of East Molesey offers period character and practical commuter convenience. Circa 1780 features include high ceilings, stripped wood flooring, period doors and a wood-burning stove, while a useful cellar provides extra storage. The property is offered with no onward chain and a 32ft southerly low-maintenance garden ideal for evening sun and small social gatherings.
The location is a major strength: Hampton Court and its Zone 6 station are within easy reach for regular commuters to London Waterloo, while local shops, cafes and several well-regarded primary schools are nearby. Community sports and riverside green spaces are also within walking distance, supporting an active local lifestyle.
Buyers should note this mid-terrace cottage sits on a small plot and has solid brick walls assumed to lack cavity insulation, so upgrading thermal performance may be required to improve comfort and running costs. Crime levels in the area are reported above average; prospective purchasers should consider security measures. The property has double glazing (install date unknown) and gas central heating; the Energy Performance Certificate is C and Council Tax band is D.
2 bedroom cottage for sale in Spring Gardens, West Molesey, KT8 — £515,000 • 2 bed • 1 bath • 722 ft²
2 bedroom terraced house for sale in Bell Cottage, Bell Road, East Molesey, KT8 — £650,000 • 2 bed • 1 bath • 749 ft²
2 bedroom semi-detached house for sale in High Street, West Molesey, KT8 — £525,000 • 2 bed • 2 bath • 945 ft²
2 bedroom semi-detached house for sale in School Road, East Molesey, KT8 — £600,000 • 2 bed • 1 bath • 767 ft²
2 bedroom end of terrace house for sale in Hurst Lane, East Molesey, KT8 — £485,000 • 2 bed • 1 bath • 696 ft²
2 bedroom terraced house for sale in Spring Gardens, West Molesey, KT8 — £538,000 • 2 bed • 1 bath • 774 ft²


















































































