**Standout Features:**
- Charming 3-bed detached home on a vast 0.42-acre plot
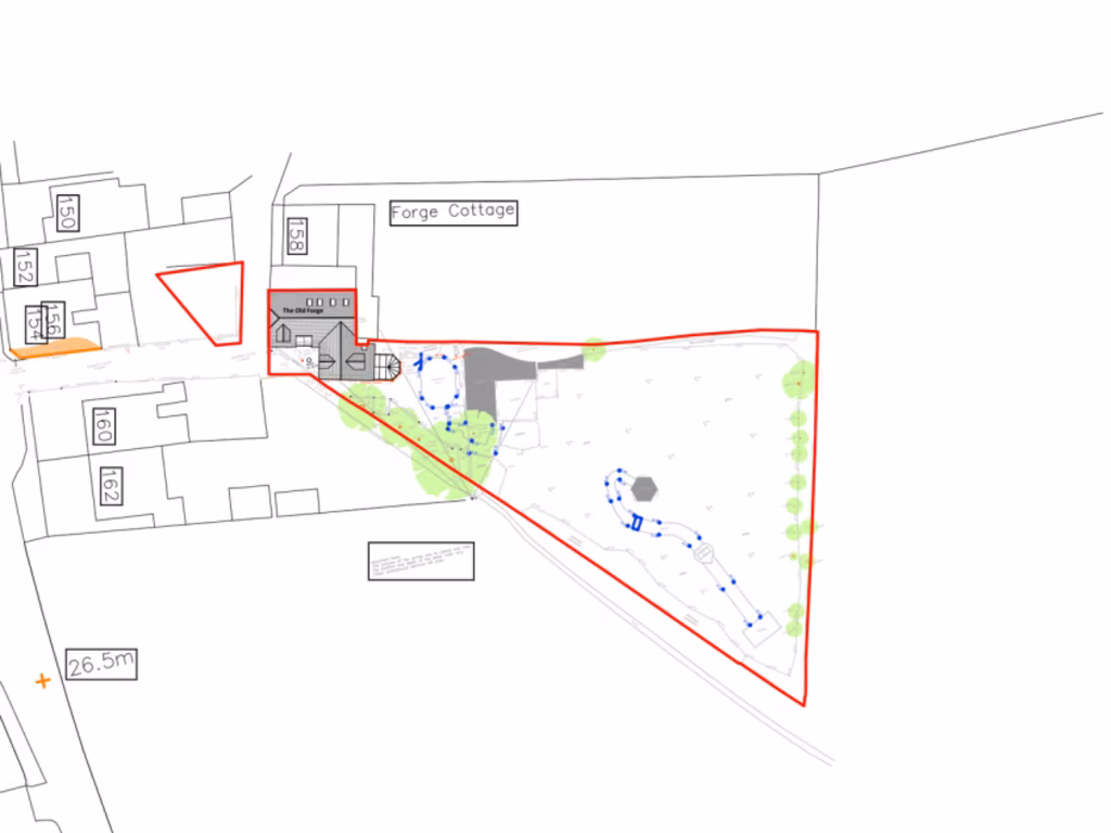
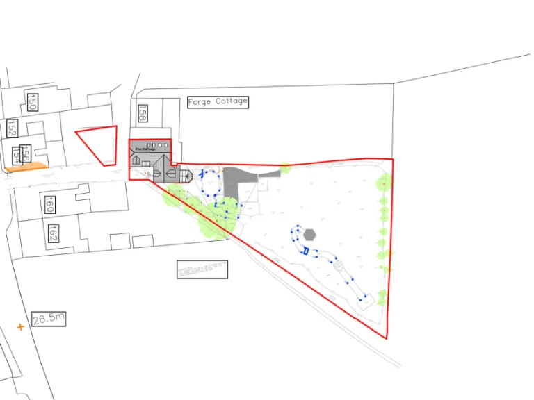
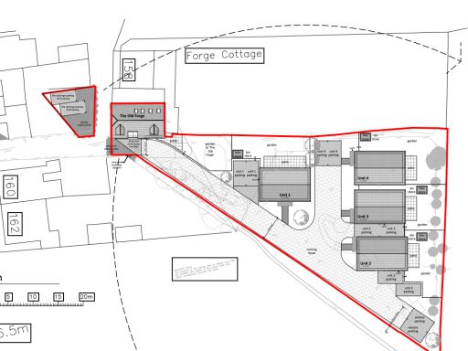
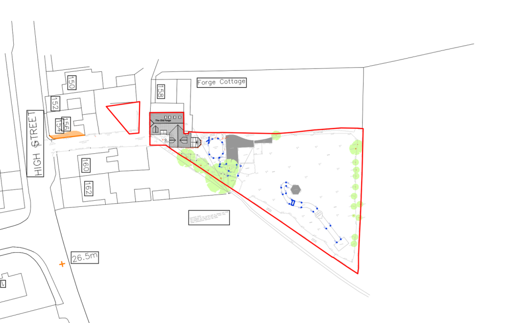
- Full planning permission for four additional 3-bed detached homes
- Extensive gardens and off-road parking available
- Highly desirable location in Garlinge, near Margate's amenities
- Excellent transport links to London and local attractions
**Potential Downsides:**
- Existing home may require some renovations
- High crime rate in the local area
This exceptional property in the sought-after village of Garlinge offers both character and development potential. The existing well-presented three-bedroom home, featuring a spacious lounge, separate dining area, and comfortable bedrooms, sits on a large plot with beautiful gardens and ample off-road parking. With full planning permission already granted for four additional detached homes, this presents a unique opportunity for developers or investors to maximize the site’s potential.
Nestled near the charming coastal town of Margate, residents will enjoy easy access to local shops, schools, and cultural hotspots, along with quick transport links to London. This prime investment opportunity is perfect for those looking to capitalize on the demand for housing in this appealing community while also envisioning their dream home on the expansive plot. Don’t miss your chance to secure this promising piece of real estate that combines peaceful village living with robust development possibilities!
3 bedroom detached house for sale in High Street, Garlinge, Margate, CT9 5LY, CT9 — £625,000 • 3 bed • 2 bath • 1676 ft²
Land for sale in High Street, Garlinge, Margate, CT9 — £800,000 • 4 bed • 2 bath
3 bedroom semi-detached house for sale in High Street, Garlinge, Margate, CT9 — £350,000 • 3 bed • 1 bath • 893 ft²
Property for sale in Park Crescent Road, Margate, CT9 — £99,000 • 1 bed • 1 bath
Land for sale in Ramsgate Road, Margate, CT10 — £600,000 • 1 bed • 1 bath • 1571 ft²
Land for sale in Sea Street, Herne Bay, CT6 — £550,000 • 1 bed • 1 bath


















































































































