HG3 2PS - 3 bedroom terraced house for sale in Nidd Lane, Darley, HG3

View on Property Piper

3 bedroom terraced house for sale in Nidd Lane, Darley, HG3

Summary - Southfield View, Nidd Lane, Darley HG3 2PS

3 bed 1 bath Terraced

**Standout Features:**
- No onward chain
- Characterful stone cottage in a desirable village
- West-facing patio garden, perfect for outdoor dining
- Parking for two vehicles
- Close to local amenities (village school, store, and post office)
- Located in an affluent rural area
- Potential for a home office or guest bedroom

**Summary:**
Discover the charm of country living in this delightful three-bedroom stone cottage in the sought-after village of Darley, offered with no chain. Enjoy a spacious living room featuring a traditional log-burning stove, a shaker-style kitchen well-suited for family dining, and a stylish bathroom with modern amenities. The property's unique configuration provides flexibility, with the smallest bedroom perfect for a home office.

Step outside to a secure west-facing patio garden, ideal for al fresco entertaining, surrounded by picturesque countryside. With parking for two vehicles and being just a short stroll from the village primary school, shop, and post office, this home is perfect for families or first-time buyers.

While the property offers a solid foundation, potential buyers may want to explore cosmetic updates or personal touches to truly make it their own. With the added peace of mind from a low-crime location and excellent mobile and broadband connectivity, seize this rare opportunity to embrace a peaceful rural lifestyle just 15 minutes from Harrogate. Don’t miss out—properties like this in such desirable locations are sure to attract attention!

Property Details

Image Descriptions

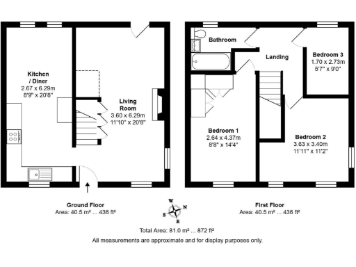
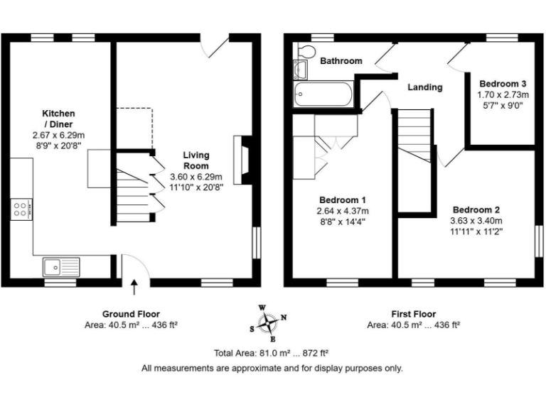
Floorplan Description

Rooms

Textual Property Features

Detected Visual Features

EPC Details

Nearby Schools

Nearest Bars And Restaurants

,,,,}

Nearest General Shops

,,}

Nearest Grocery shops

,,}

Nearest Supermarkets

,,}

Nearest Religious buildings

,,}

Nearest Medical buildings

,,,}

Nearest Airports

}

Nearest Leisure Facilities

,,,,}

Nearest Tourist attractions

,,}

Nearest Train stations

,,,,}

Nearest Bus stations and stops

,,,,}

Nearest Hotels

,,}

Tags

Local Market Stats

Meta

High Res Images

Compatible Images

Low res Images

Thumbnails

Raw Images

High Res Floorplan Images

Compatible Floorplan Images

Low res Floorplan Images

FloorplanImages Thumbnail

Raw Floorplan Images