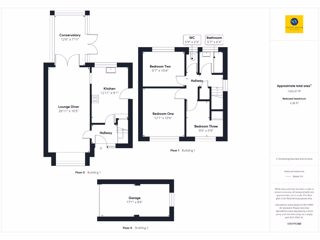
**Standout Features:**
- Three bedroom detached family home
- Generous conservatory for additional living space
- Front, side, and rear gardens
- Driveway and detached garage with ample parking
- Potential for extension (subject to planning permission - STPP)
- Located in the desirable Wilpshire area
- Freehold tenure; Council Tax Band D
Nestled in the sought-after Wilpshire area of the Ribble Valley, this charming three-bedroom detached home offers ample living space, a generous conservatory, and the flexibility for future extensions (STPP). Ideal for families or investors, the property's highlights include a welcoming entrance hall, a sizable reception area with a dining zone, and a well-equipped kitchen. The first floor features a master bedroom and two additional bedrooms alongside a family bathroom with a separate WC.
The outdoor spaces are equally impressive, boasting well-maintained gardens on three sides and a spacious lawn surrounded by mature plants, perfect for relaxation or entertaining. With a driveway and detached garage, parking is convenient. Positioned within the catchment area of outstanding local schools and close to necessary amenities and transportation links, this property presents an enviable blend of comfort and accessibility. Although it may require some updating, this home brims with potential—seize the opportunity to create your dream space in a prime location!
3 bedroom detached house for sale in Knowsley Road, Wilpshire, Blackburn, Lancashire, BB1 — £399,995 • 3 bed • 2 bath • 1374 ft²
5 bedroom detached house for sale in Durham Road, Wilpshire, BB1 — £450,000 • 5 bed • 2 bath • 1736 ft²
3 bedroom detached house for sale in Durham Road, Wilpshire, BB1 — £300,000 • 3 bed • 1 bath • 1055 ft²
3 bedroom detached house for sale in Woodcrest, Wilpshire, BB1 — £289,000 • 3 bed • 1 bath • 1360 ft²
3 bedroom semi-detached house for sale in Shetland Close, Wilpshire, Blackburn, Lancashire, BB1 — £300,000 • 3 bed • 2 bath • 1204 ft²
3 bedroom semi-detached house for sale in Shetland Close, Wilpshire, Blackburn, Lancashire, BB1 — £270,000 • 3 bed • 1 bath • 1145 ft²






































































