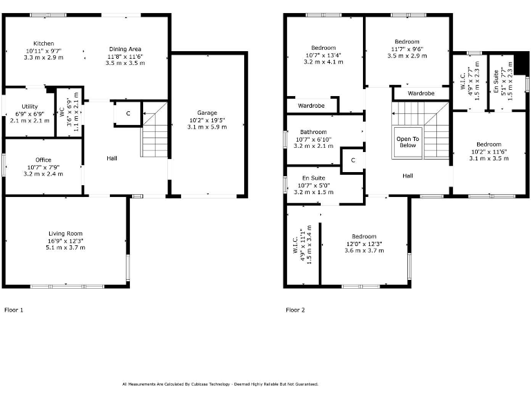
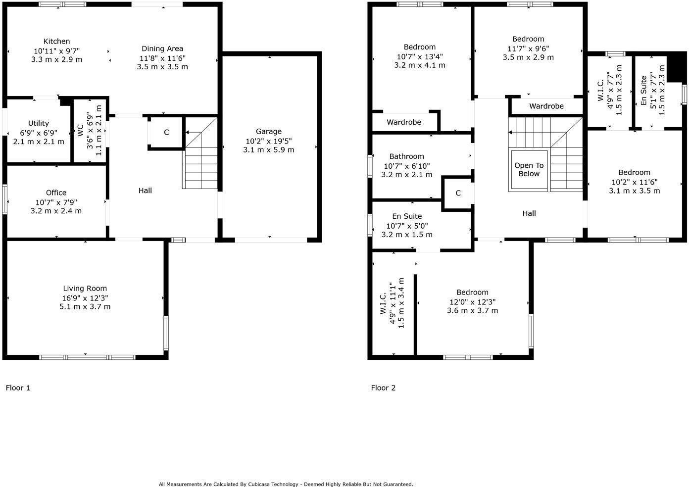
Light-filled five-bedroom house with energy-efficient systems and woodland views.
- Five double bedrooms, two with ensuite showers and walk-in wardrobes
- Spacious open-plan kitchen/dining, seats 8–10, French doors to garden
- Built 2023; EPC Band B; air source heat pump; EV charging ready
- Integral single garage with internal access and driveway parking for vehicles
- Secluded rear garden with woodland outlook; mainly lawn, needs landscaping
- Fast broadband and excellent mobile signal; electric blinds fitted upstairs
- Council Tax Band G — relatively high ongoing costs
- Area recorded as very deprived; local socioeconomic context to consider
A contemporary five-bedroom detached house completed in 2023, designed for comfortable family living and entertaining. The ground-floor open-plan kitchen and dining area seats 8–10 and opens to a secluded rear garden with woodland views, while a bright dual-aspect lounge provides a relaxed sitting space. The principal and second bedrooms both include ensuite showers and walk-in wardrobes, offering private family retreats.
Built with energy efficiency in mind, the home has an air source heat pump, is EV-charging ready and carries an EPC band B. Practical day-to-day features include an integral garage with internal access, a utility room, Karndean flooring across the ground floor and fitted electric blinds on both floors. Fast broadband and excellent mobile signal support home working and streaming throughout.
Buyers should note material running costs and local context: the property sits in an area described as very deprived and is in Council Tax Band G, which will increase ongoing costs. The rear garden is a mainly lawned, blank canvas requiring landscaping to suit personal tastes. Overall condition is excellent as a recent build, making this a low-maintenance, high-spec family home with scope to personalise external landscaping.
5 bedroom detached house for sale in Plot 2, Meadowside Crescent, Muckhart, Dollar, Clackmannanshire, FK14 — £515,000 • 5 bed • 4 bath • 1905 ft²
5 bedroom detached house for sale in Plot 34 Meadowside Crescent, Muckhart, Dollar, Clackmannanshire, FK14 — £475,000 • 5 bed • 4 bath • 1798 ft²
5 bedroom detached house for sale in Woodacre, Muckhart FK14 7JW, FK14 — £625,000 • 5 bed • 3 bath • 2314 ft²
5 bedroom detached house for sale in Off B908,
Sauchie,
Alloa,
FK10 3EF, FK10 — £425,000 • 5 bed • 1 bath • 1201 ft²
5 bedroom detached house for sale in Off Turnhouse Road,
Edinburgh,
EH12 0AD, EH12 — £625,000 • 5 bed • 1 bath • 1201 ft²
5 bedroom detached house for sale in Shelduck Park, Alloa, Clackmannanshire, FK10 — £370,000 • 5 bed • 3 bath • 1765 ft²














































































































































