Large southerly garden and garage — ideal for a family project.
Chain free freehold three-bedroom semi-detached house
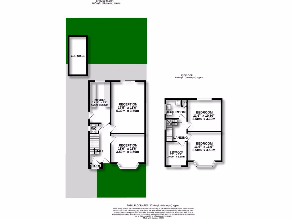
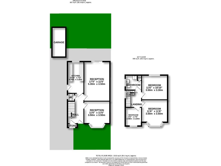
A three-bedroom semi-detached home offering a large, southerly rear garden, garage and off-street parking — ideal for a growing family seeking outdoor space and scope to add value. The ground floor includes a separate dining room with a bay window, through lounge with French doors to the garden, extended kitchen and a handy downstairs WC. Upstairs provides three bedrooms and a shower room.
The property is freehold and being sold chain free, which simplifies moving timescales. It has practical benefits in place: mains gas central heating, double glazing and good digital connectivity (excellent mobile signal and fast broadband). The plot is a real asset — a long, mature garden with planted borders, fruit trees, patio area and potential for landscaping, extension (subject to planning) or an outbuilding.
The house does require renovation and modernisation throughout to reach its full potential. Walls are solid brick with assumed no insulation, and some updating of finishes, services and décor will be needed. The local area is mixed: accessible within a major conurbation with average crime levels, affordable council tax, but the ward shows higher deprivation indices. Schools nearby include good and outstanding-rated options.
This is a straightforward project for a family wanting a roomy garden and a house to personalise, or for buyers seeking refurbishment potential in a well-located suburban plot. Viewing is recommended to appreciate the garden, layout and scope for improvement.
3 bedroom semi-detached house for sale in Argyll Avenue, Eastham, CH62 — £215,000 • 3 bed • 1 bath • 829 ft²
3 bedroom semi-detached house for sale in Linkside, Higher Bebington, Wirral, CH63 — £275,000 • 3 bed • 1 bath • 1309 ft²
3 bedroom semi-detached house for sale in Fairacres Road, Bebington, CH63 — £270,000 • 3 bed • 1 bath • 1023 ft²
3 bedroom semi-detached house for sale in Mount Road, Birkenhead, Wirral, CH42 — £190,000 • 3 bed • 1 bath • 1033 ft²
3 bedroom semi-detached house for sale in Chiltern Road, Prenton, CH42 — £210,000 • 3 bed • 1 bath • 1471 ft²
3 bedroom semi-detached house for sale in Allport Road, Bromborough, CH62 — £215,000 • 3 bed • 1 bath • 936 ft²






















































































