Chain-free, long lease, allocated parking in a walkable Dorchester neighbourhood.
First-floor apartment with lift access
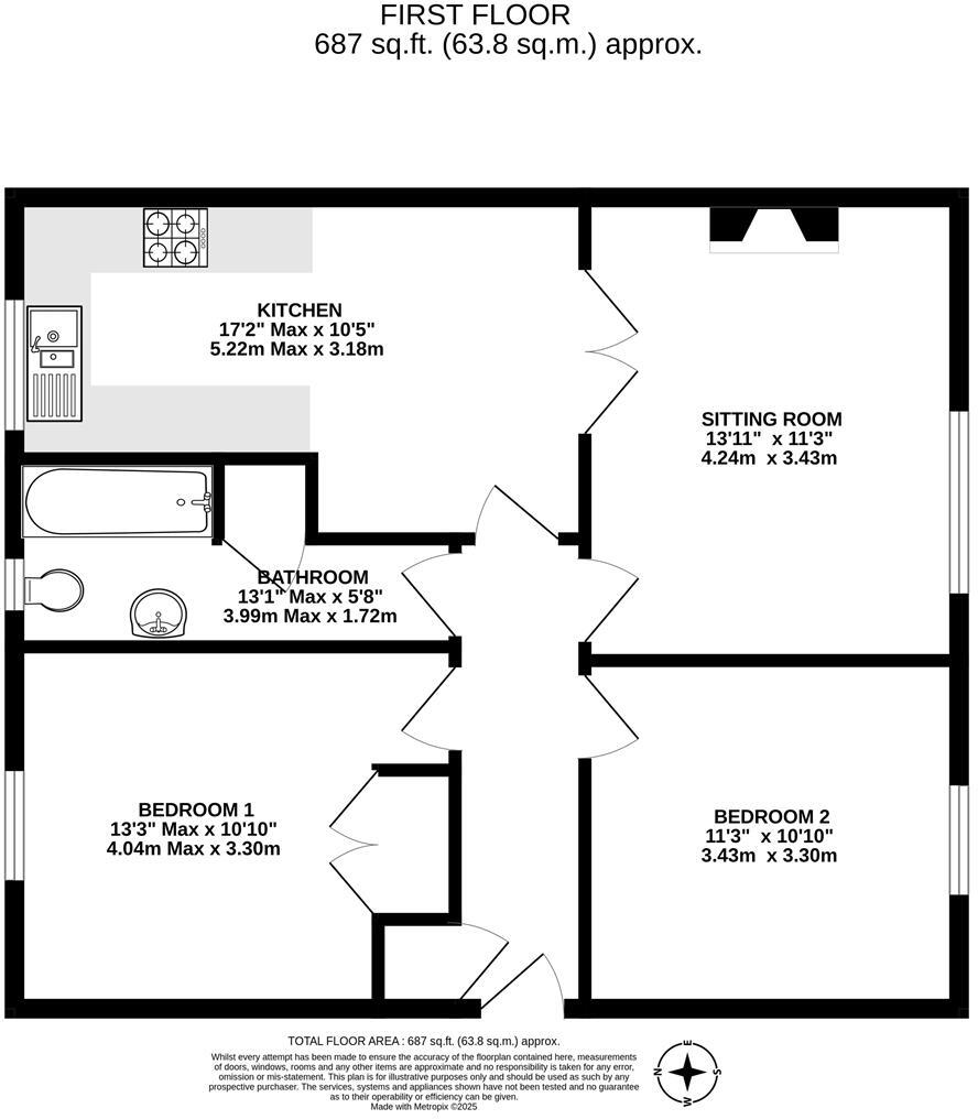
A bright first-floor apartment in Poundbury offering practical space for first-time buyers or a buy-to-let. The accommodation includes a reception room with good natural light, a separate kitchen, two double bedrooms and a bathroom. Lift access and an exclusively reserved allocated parking space in the rear courtyard add everyday convenience.
The building is modern (circa 2003–2006) with double glazing, gas central heating and an EPC rating of B. Poundbury’s local shops, Waitrose, cafés, medical centre and schools are all within walking distance, making this a walkable location for daily needs and commuting.
Important practical details are straightforward: the long lease (999 years from 2002), no onward chain and the apartment’s size of approximately 687 ft². Ongoing costs include an annual service charge (c. £2,103.90) and a six-monthly charge shown as £1,051.95 on the 2025 invoice. Council tax is band C.
This apartment suits someone wanting a low-stairs, low-maintenance home in a planned community, or an investor seeking a ready-made rental in a stable market. There are no reported flood risks and utilities are mains-connected.
2 bedroom apartment for sale in Middlemarsh Street, Poundbury, DT1 — £279,950 • 2 bed • 2 bath • 1012 ft²
2 bedroom apartment for sale in Middlemarsh Street, Poundbury, Dorchester, DT1 — £210,000 • 2 bed • 1 bath • 662 ft²
2 bedroom apartment for sale in Victor Jackson Avenue, Poundbury, Dorchester, DT1 — £235,000 • 2 bed • 1 bath • 713 ft²
2 bedroom apartment for sale in Peverell Avenue East, Poundbury, Dorchester, DT1 — £255,000 • 2 bed • 1 bath • 725 ft²
2 bedroom apartment for sale in Bridport Road, Poundbury, Dorchester, DT1 — £280,000 • 2 bed • 2 bath • 855 ft²
2 bedroom apartment for sale in Crown Street West, Poundbury, Dorchester, DT1 — £215,000 • 2 bed • 1 bath • 602 ft²


























































































