High-spec family living with smart tech and EV charging close to coast.
Open-plan kitchen/dining/family room with island and integrated appliances
Five bedrooms including ground-floor master with en-suite and patio doors
New-build, high-spec finishes: Porcelanosa, Villeroy & Boch, Hansgrohe
Smart heating and EV charging point fitted
Turfed gardens, paved patios, fenced plot with decent outside space
Freehold tenure; fast broadband and excellent mobile signal
Low local crime; nearby good primary schools, secondary rated Requires Improvement
Listing inconsistency: advertised as two bathrooms but structured data lists one
Discover a spacious five-bedroom dormer bungalow in a peaceful, affluent pocket of Marton-in-Cleveland. The open-plan kitchen/dining/family space is the social heart, fitted with integrated appliances, an island and patio doors that connect to a turfed rear garden and paved patio. A useful utility room and an en-suite to the master add everyday convenience.
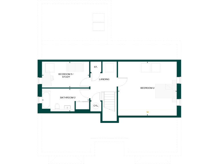
Finished to a high specification with Porcelanosa tiling, Villeroy & Boch sanitaryware and Hansgrohe fittings, the home includes smart heating and an EV charging point. The first-floor dormer provides a large bedroom with velux windows, a bathroom with separate bath and shower, plus a further room suitable as a study or single bedroom — good flexibility for growing families or home working.
Practical details add to the appeal: freehold tenure, new-build specification, fast broadband, excellent mobile signal, low local crime and nearby good primary schools. Note there is an inconsistency in the supplied listing data regarding the number of bathrooms (advert text states two bathrooms, while structured field lists one) — buyers should confirm exact specification when enquiring.
This property suits buyers seeking a generous single-storey living layout with some upstairs flexibility, high-end finishes and low-maintenance gardens. The inclusion of £9,000 of extras and modern conveniences makes it move-in ready for families wanting close access to Teesside amenities and the nearby coast.
4 bedroom detached bungalow for sale in Brass Castle Lane, Marton-In-Cleveland, Middlesbrough,
TS8 9QZ, TS8 — £573,995 • 4 bed • 1 bath
4 bedroom detached bungalow for sale in Brass Castle Lane, Marton-In-Cleveland, Middlesbrough,
TS8 9QZ, TS8 — £612,995 • 4 bed • 1 bath
5 bedroom detached house for sale in Brass Castle Lane, Marton-In-Cleveland, Middlesbrough,
TS8 9QZ, TS8 — £694,995 • 5 bed • 1 bath • 455 ft²
5 bedroom detached house for sale in Brass Castle Lane, Marton-In-Cleveland, Middlesbrough,
TS8 9QZ, TS8 — £637,995 • 5 bed • 1 bath
5 bedroom detached house for sale in Brass Castle Lane, Marton-In-Cleveland, Middlesbrough,
TS8 9QZ, TS8 — £559,995 • 5 bed • 1 bath
4 bedroom detached bungalow for sale in Brass Castle Lane, Marton-In-Cleveland, Middlesbrough,
TS8 9QZ, TS8 — £599,995 • 4 bed • 1 bath


































































































































