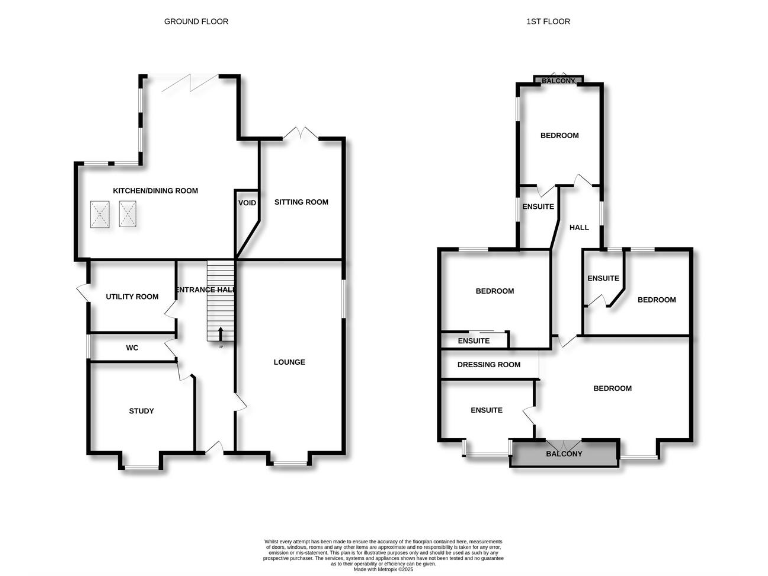
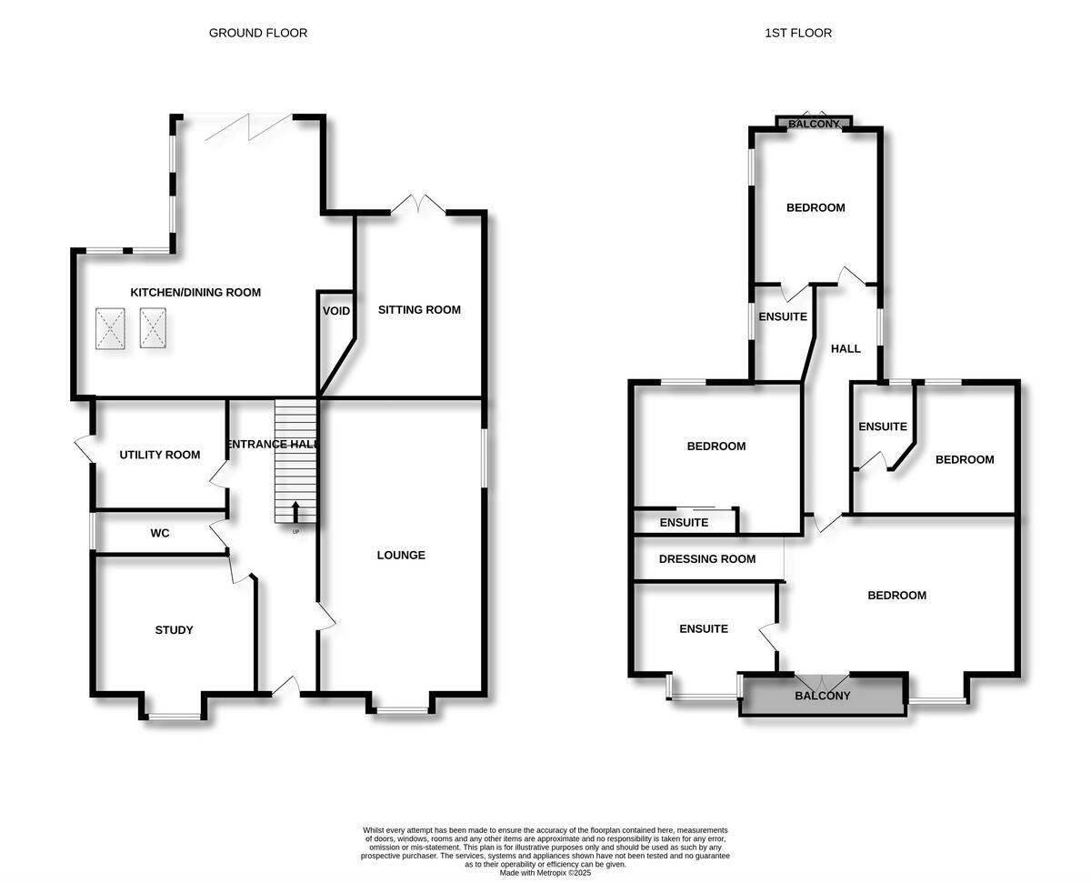
Large Edwardian detached home with ensuites for every bedroom and stunning beach views..
- Over 2,600 sq ft interior living across multiple reception rooms
- Four double bedrooms each with a private ensuite
- Spectacular beach and coastline views from two balconies
- West-facing garden for afternoon sun and evening sunsets
- In catchment for highly rated grammar and good local schools
- Solid brick walls likely uninsulated; energy upgrades advised
- Converted from guest house/two dwellings — large, adaptable layout
- Local area shows high crime and very high deprivation statistics
Set just moments from the seafront, this double-fronted Edwardian detached home offers over 2,600 sq ft of flexible family living. Four double bedrooms each have their own ensuite, and multiple reception rooms plus a dedicated study give space for home working, play and entertaining. Two balconies and a west-facing garden make the most of afternoon sun and coastal views.
The house was originally two properties/guest house and has been converted to create generous rooms and high ceilings, retaining period character while benefiting from a modern fitted kitchen finished to a high specification. Commuters will appreciate direct train routes into London and local convenience with Leigh Broadway’s shops, cafés and restaurants nearby.
Practical considerations are clear: the solid-brick walls are likely uninsulated (typical of its 1900–1929 construction) and some fabric or energy upgrades may be needed to improve efficiency. The wider area shows signs of high crime and very high deprivation; buyers should factor neighbourhood context into suitability and insurance costs. There is good mobile signal and fast broadband, and the property is freehold with a decent plot and off-street parking potential.
This home suits families seeking space, coastal lifestyle and access to strong local schools (including top-rated grammar options). It will also appeal to buyers wanting a large, characterful house with scope to update energy performance and add personal finishes.
4 bedroom detached house for sale in Grosvenor Road, Westcliff-On-Sea, SS0 — £950,000 • 4 bed • 5 bath • 2500 ft²
4 bedroom detached house for sale in Lodwick, Shoeburyness, Essex, SS3 — £1,750,000 • 4 bed • 3 bath • 3047 ft²
4 bedroom detached house for sale in Chalkwell Esplanade, Chalkwell, Essex, SS0 — £2,150,000 • 4 bed • 3 bath • 3808 ft²
4 bedroom detached house for sale in BEACH AVENUE, Leigh-On-Sea, SS9 — £850,000 • 4 bed • 3 bath • 1614 ft²
5 bedroom detached house for sale in Thorpe Bay Gardens, Thorpe Bay, Essex, SS1 — £2,500,000 • 5 bed • 4 bath • 3951 ft²
5 bedroom detached house for sale in Thorpe Bay Gardens, Thorpe Bay, Essex, SS1 — £2,175,000 • 5 bed • 4 bath • 4615 ft²










































































































































