Generous family home with large gardens and excellent local schools.
Exceptionally large plot with mature, landscaped front and rear gardens
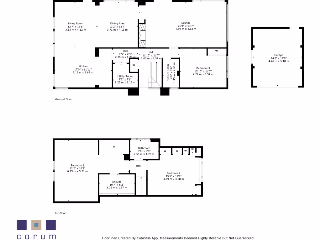
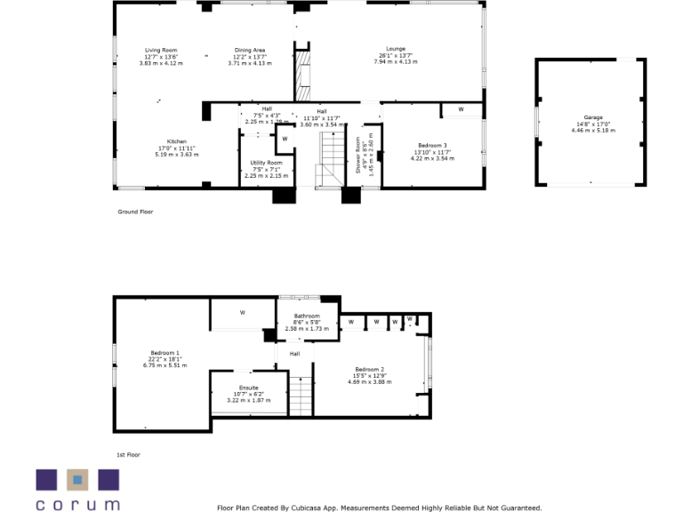
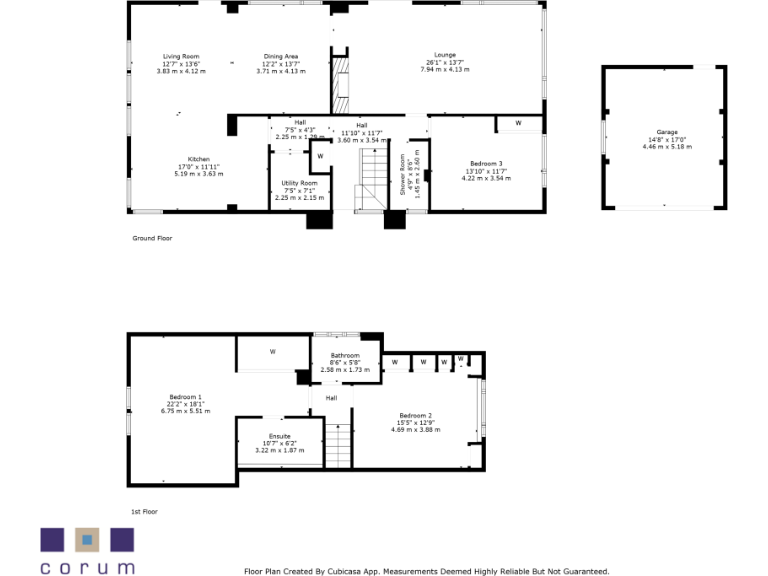
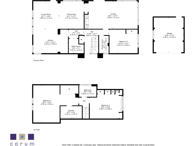
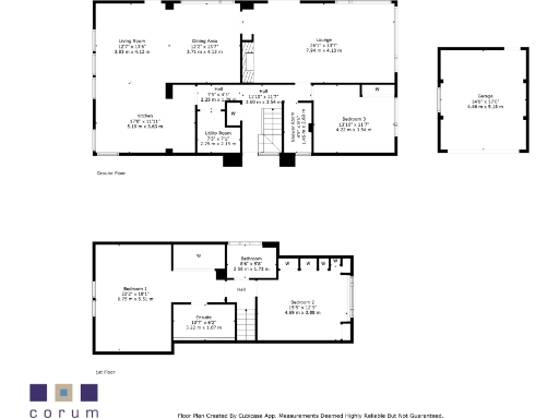
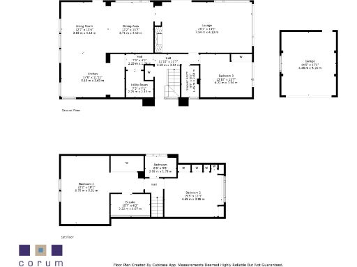
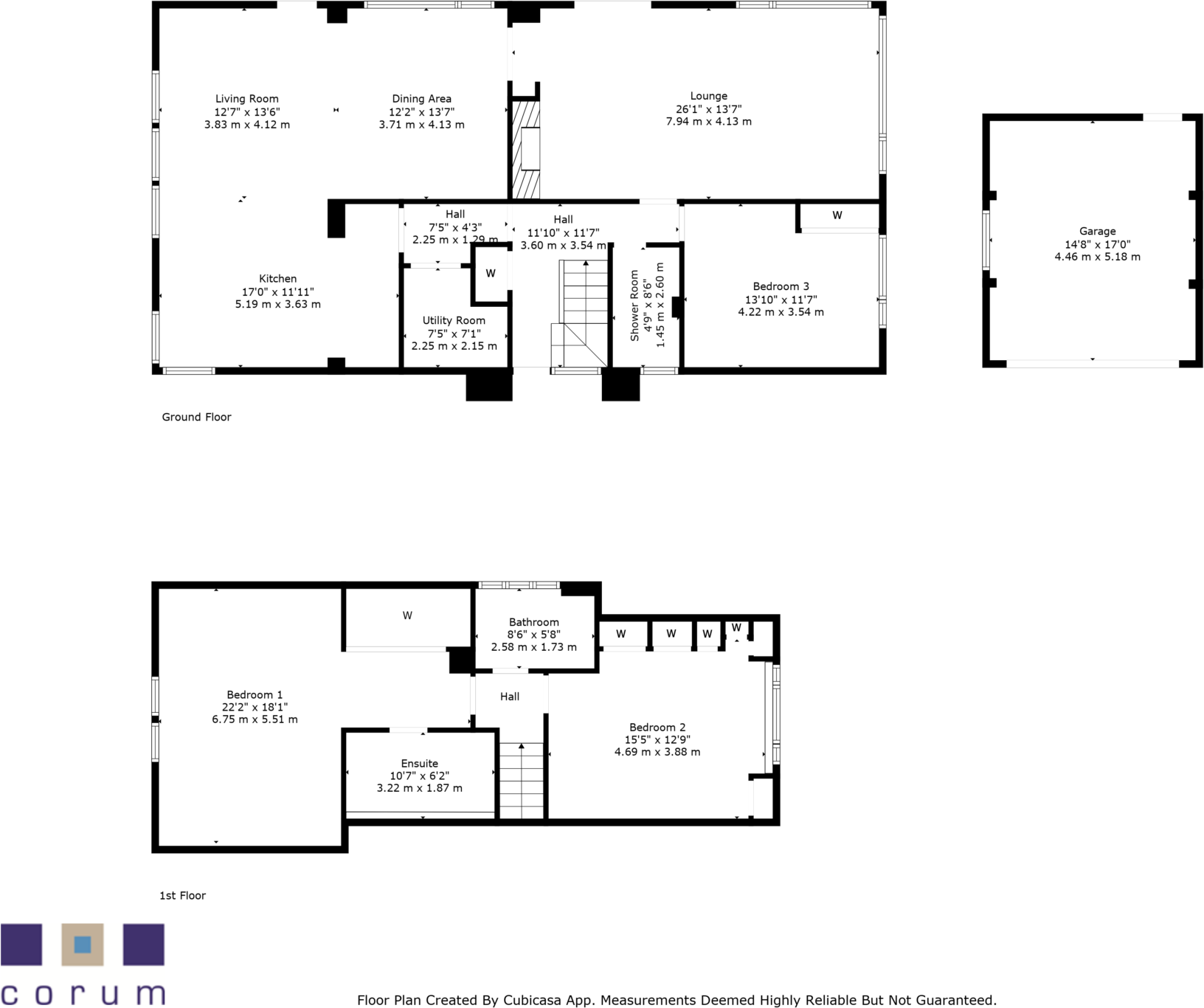
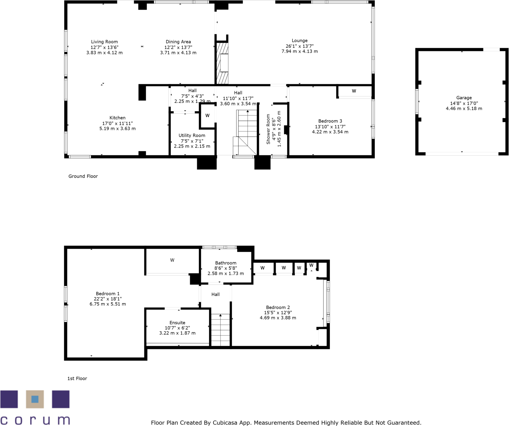
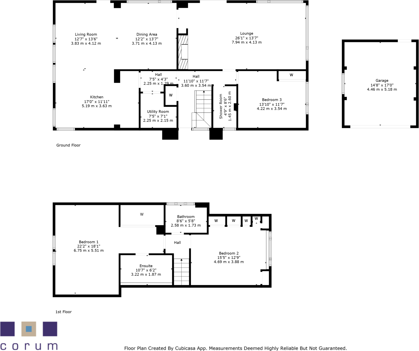
Set on one of Kilmardinny Crescent’s finest plots, this three-bedroom detached villa offers substantial indoor space and exceptionally generous, landscaped gardens. The main lounge and bright open-plan family/dining area face mature greenery, creating a private, peaceful setting for family life and outdoor entertaining. A detached garage, greenhouse, summerhouse and wide driveway provide practical outbuildings and abundant parking for several vehicles.
Internally the layout suits multi-generational living or a family needing flexible space: a ground-floor double bedroom with shower room, two double bedrooms upstairs (one with ensuite) and a large family bathroom. The kitchen is well-equipped and includes integrated appliances and a range cooker; multiple reception rooms and plentiful fitted storage add everyday convenience. The home benefits from double glazing and oil central heating.
Buyers should note a few practical considerations: the energy rating is E and the property uses oil heating, which may affect running costs and energy-efficiency improvements. Council tax is described as quite expensive. The wider data flags area deprivation despite the local description of an affluent suburb — prospective buyers should check local services and statistics that matter to them.
For families drawn to established suburbs with strong schooling options, generous outdoor space and a sense of privacy, this home delivers a rare plot and comfortable, adaptable accommodation. The house is best suited to buyers who value plot, views and garden space and who are willing to consider energy upgrading and ongoing maintenance of mature grounds.
3 bedroom flat for sale in 9 Kilmardinny Gate, Bearsden, G61 3ND, G61 — £360,000 • 3 bed • 2 bath • 1023 ft²
4 bedroom detached house for sale in Birnam Crescent, Bearsden, G61 — £410,000 • 4 bed • 2 bath • 1636 ft²
4 bedroom detached house for sale in 6 Kilpatrick Drive, Bearsden, G61 4RH, G61 — £395,000 • 4 bed • 3 bath • 1431 ft²
4 bedroom detached bungalow for sale in 14 Cromalt Crescent, Bearsden, G61 4RX, G61 — £475,000 • 4 bed • 2 bath • 1565 ft²
4 bedroom detached villa for sale in 30 Morven Road, Bearsden, G61 3BY, G61 — £495,000 • 4 bed • 2 bath • 1485 ft²
3 bedroom semi-detached house for sale in 54 Speirs Road, Bearsden, G61 2LU, G61 — £300,000 • 3 bed • 1 bath • 936 ft²










































































































































































































































































