**Standout Features:**
- Spacious 2-bedroom duplex in a Grade II listed Victorian building (originally 1880).
- Newly renovated with stylish interiors and high ceilings.
- Open plan kitchen by Kitchens International with Quartz worktops.
- Two en suite bathrooms and an additional WC.
- Allocated secure parking and lift access.
- Excellent location near Byres Road and the University of Glasgow.
**Potential Concerns:**
- Expensive council tax band (F).
- Property requires ongoing maintenance due to older building status.
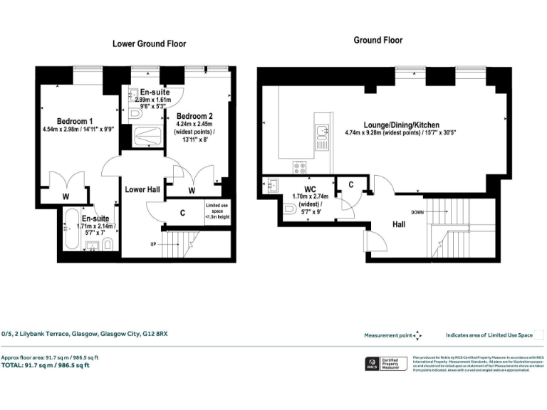
Nestled in the charming Hillhead area, 2 Lilybank Terrace is an exceptional two-bedroom duplex conversion that marries historic elegance with modern luxury. This stunning property is part of a beautifully refurbished Grade II listed Victorian school, benefiting from high ceilings and ample natural light, creating an inviting living space. Enjoy the ease of an open plan layout featuring a contemporary kitchen fitted with top-quality appliances, two spacious double bedrooms with en suite facilities, and the convenience of secure parking.
Location is everything, and this apartment places you just a short walk from vibrant Byres Road, known for its eclectic mix of independent cafés, shopping, and cultural hotspots. Nearby green spaces like the Botanic Gardens enhance the area's appeal, making it perfect for both students and professionals. Although the property is in an area classified as 'very deprived' and carries an expensive council tax, its unique character and luxury finishes make it an exclusive find in this bustling cosmopolitan neighborhood. Seize the opportunity to secure a touch of history combined with modern comfort—properties like this don't stay on the market for long!
4 bedroom apartment for sale in Lilybank Terrace, Hillhead, Glasgow, G12 — £419,000 • 4 bed • 3 bath • 1414 ft²
2 bedroom duplex for sale in Lilybank Terrace, Glasgow, G12 — £360,000 • 2 bed • 2 bath • 980 ft²
2 bedroom apartment for sale in Great George Street, Hillhead, Glasgow, G12 — £299,000 • 2 bed • 3 bath • 847 ft²
2 bedroom duplex for sale in Flat 3 9 Lynedoch Place, Park G3 6AB, G3 — £699,000 • 2 bed • 3 bath • 2045 ft²
2 bedroom flat for sale in Lilybank Terrace, Hillhead, G12 — £359,000 • 2 bed • 2 bath • 1179 ft²
4 bedroom flat for sale in Southpark Avenue, Hillhead, G12 — £295,000 • 4 bed • 2 bath • 1886 ft²


























































































