Rare waterside period home with major renovation potential near town amenities.
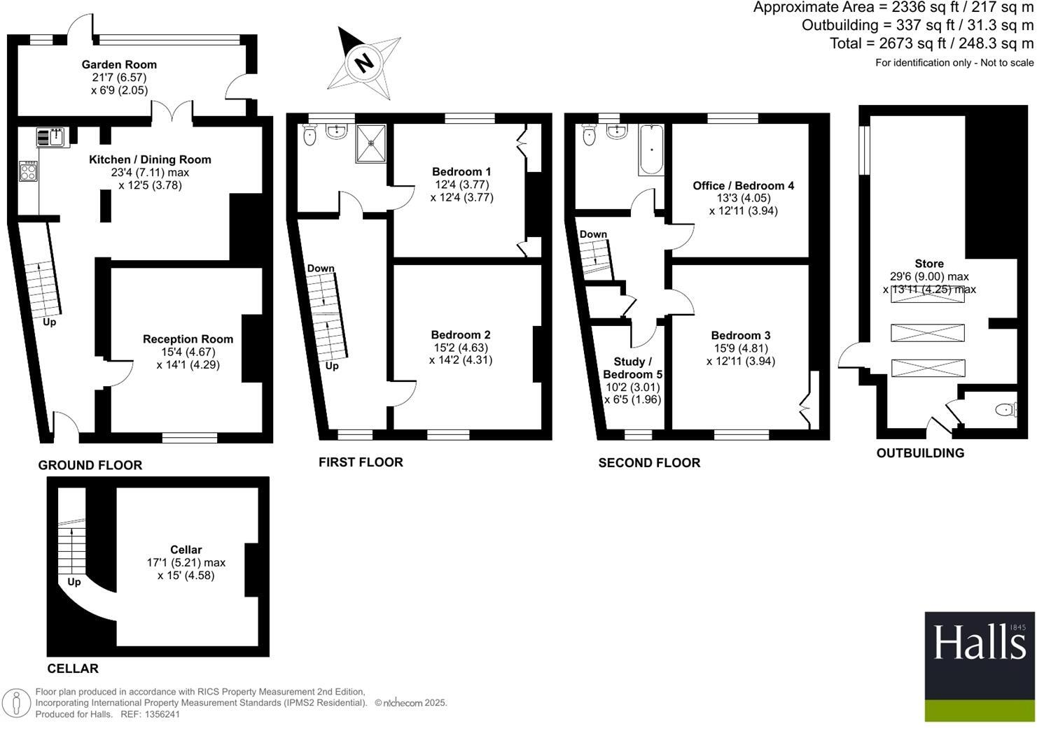
- Grade II listed Georgian townhouse, over 2,000 sq ft
- Gardens extend to The Mere with direct access and water views
- Five bedrooms across three floors plus large cellar storage
- Requires comprehensive modernisation throughout
- Listed status will restrict works; consents likely required
- Outbuilding with cloakroom offers flexible usage (LA consent needed)
- Mains gas boiler and double glazing (installation date unknown)
- Solid brick walls assumed uninsulated; retrofit likely needed
This substantial Grade II listed Georgian townhouse offers over 2,000 sq ft of period accommodation arranged across three floors, with generous rooms, high ceilings and many original features. Its rear gardens run down to The Mere, providing rare direct water access and attractive outlooks from the property.
The house requires comprehensive modernisation throughout: services, decoration and garden renovation will be needed to revive the property. Listed status means works will need listed-building consent and may restrict alterations; buyers should budget for specialist surveys and permissions.
Practical positives include a large cellar for storage, a useful outbuilding with cloakroom and scope for alternative uses (subject to local authority consent), mains gas central heating and double glazing (install date unknown). The location is prestigious and convenient — within easy walking distance of Ellesmere’s shops, restaurants and well-regarded schools — making the house suitable for a large family seeking character and space, or an investor able to undertake a sensitive refurbishment.
Overall this is a characterful, edge-of-town home with strong long-term potential once upgraded, but it will suit buyers prepared for a significant renovation project and the constraints of listed ownership.
4 bedroom town house for sale in St. Johns Hill, Ellesmere., SY12 — £230,000 • 4 bed • 1 bath • 979 ft²
3 bedroom terraced house for sale in St. Johns Hill, Ellesmere, SY12 — £189,995 • 3 bed • 1 bath • 1260 ft²
4 bedroom terraced house for sale in St. Johns Hill, Ellesmere, SY12 — £360,000 • 4 bed • 2 bath • 2396 ft²
2 bedroom terraced house for sale in St. Johns Hill, Ellesmere., SY12 — £210,000 • 2 bed • 1 bath • 1023 ft²
5 bedroom detached house for sale in Scotland Street, Ellesmere, SY12 — £370,000 • 5 bed • 2 bath • 3392 ft²
Terraced house for sale in Scotland Street, Ellesmere., SY12 — £299,995 • 1 bed • 1 bath • 350 ft²






















































