**Standout Features:**
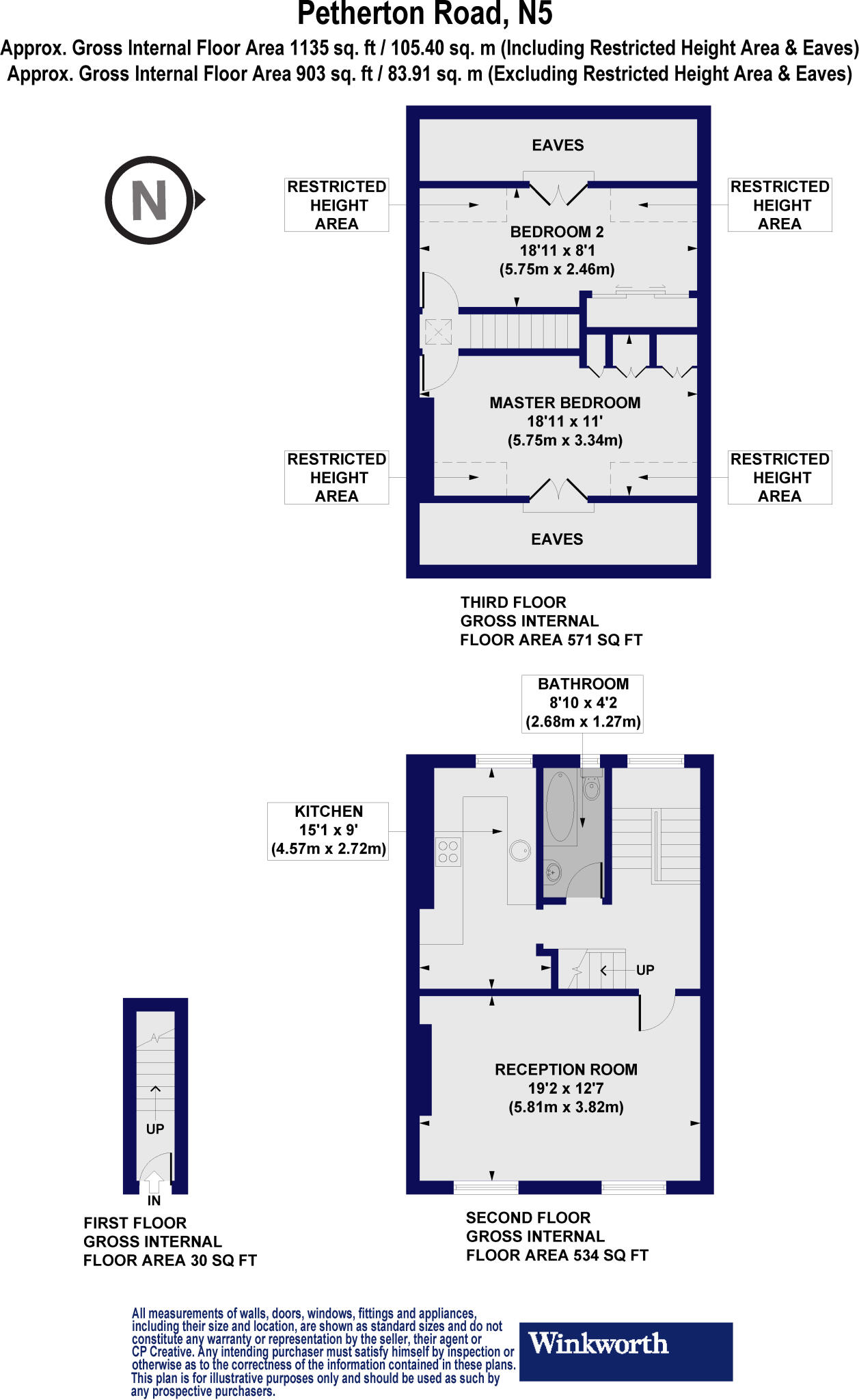
- Spacious 2-bedroom apartment within a Victorian conversion (over 1,100 sqft)
- High ceilings, large sash windows, and contemporary finishes throughout
- Share of freehold and chain-free sale
- Exceptional storage in both bedrooms
- Proximity to Clissold Park and vibrant Stoke Newington Church Street
- Great transport links via Canonbury overground and Highbury & Islington underground
**Notable Concerns:**
- Solid brick walls built with no insulation (assumed)
- Moderate council tax rates
Nestled in the heart of Highbury, N5, this spectacular two-bedroom apartment presents an enticing opportunity for first-time buyers or investors seeking a taste of Victorian elegance with modern comfort. Spanning over 1,100 square feet, this stylish property features a sun-drenched living room that showcases stunning views, alongside a generous kitchen equipped with ample storage and serene garden vistas. Both spacious bedrooms come with exceptional storage solutions, ensuring practicality meets charm.
The exclusive Petherton Road offers a tranquil atmosphere just moments away from the lush Clissold Park and the bustling amenities of Stoke Newington Church Street, providing an array of eateries, boutiques, and leisure options. With excellent transport connections nearby, including the Canonbury overground and Highbury & Islington underground, commuting to the City or West End is straightforward.
This property is a must-see – its blend of space, light, and historical charm means it won’t last long on the market! Don't miss out on the chance to make this vibrant apartment your new home.
2 bedroom apartment for sale in Aberdeen Road, London, N5 — £895,000 • 2 bed • 2 bath • 947 ft²
2 bedroom apartment for sale in Petherton Road, London, N5 — £1,000,000 • 2 bed • 3 bath • 1323 ft²
2 bedroom apartment for sale in Highbury New Park, London, N5 — £900,000 • 2 bed • 2 bath • 765 ft²
2 bedroom apartment for sale in Highbury New Park, London, N5 — £825,000 • 2 bed • 1 bath • 783 ft²
2 bedroom apartment for sale in Highbury New Park, London, N5 — £700,000 • 2 bed • 1 bath • 678 ft²
2 bedroom apartment for sale in 81, Highbury Hill, Highbury, N5 — £850,000 • 2 bed • 1 bath • 691 ft²


















































