Affordable three-bed terrace with long garden and rear parking — ideal for first-time buyers or investors..
Three bedrooms in compact, practical layout
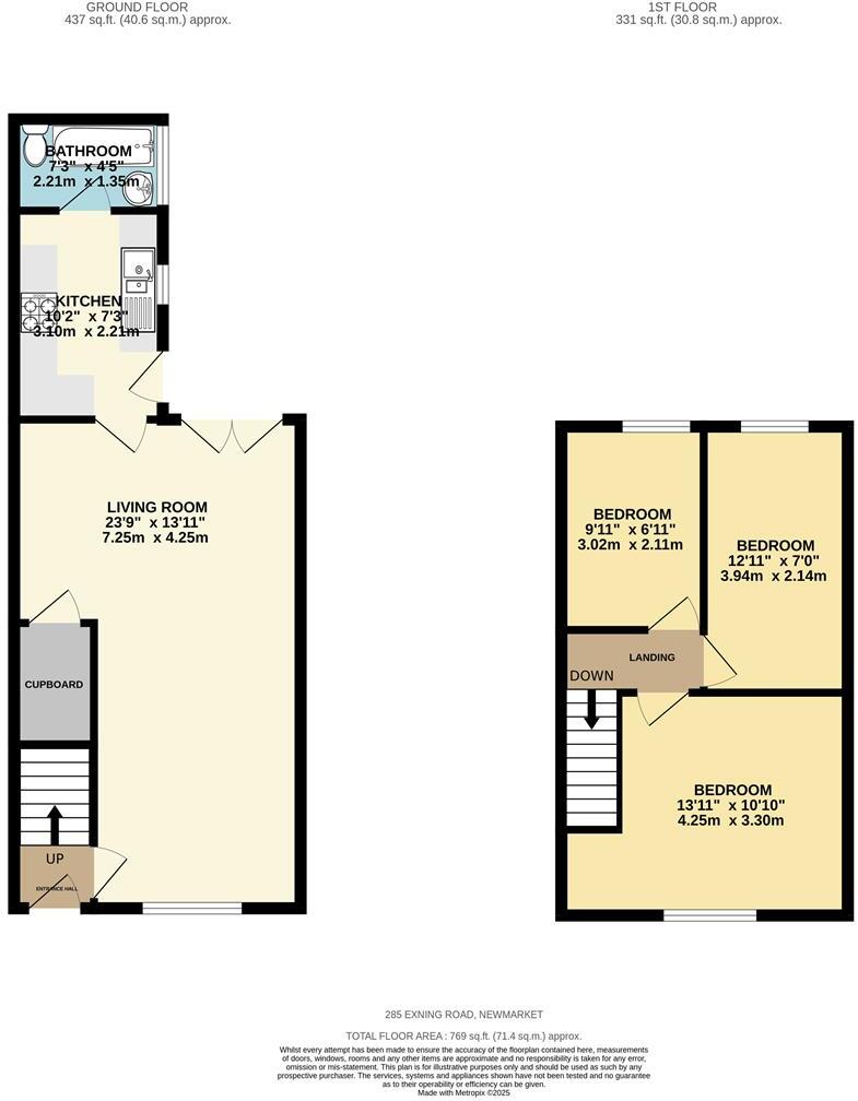
A practical three-bedroom mid-terrace on Exning Road, offered freehold and ready for occupation or straightforward updating. The house sits close to Newmarket town amenities and schools, with gas central heating, double glazing and a generous rear garden with rear vehicular access and off-street parking.
The accommodation is compact but well laid out: an expansive dual-aspect living/dining room, fitted kitchen, ground-floor bathroom and three first-floor bedrooms. The property is solid-brick construction (inter-war period) and presents in fair, liveable condition; cosmetic refresh and kitchen/bathroom modernisation would increase comfort and value.
Notable positives are the long rear garden, rear parking, low council tax band and excellent broadband and mobile coverage. Important considerations: overall internal size is modest (approx 71 sqm / 764 sqft), solid brick walls likely lack cavity insulation, and some external render/paint shows wear. There is a single bathroom and rooms are average in size — buyers seeking larger living spaces or fully modernised finishes should factor in renovation works and associated costs.
This property will appeal to first-time buyers seeking an affordable entry in Newmarket, or investors targeting a rentable three-bedroom terrace with strong connectivity and minimal immediate major defect risk. The home offers scope to add value through targeted cosmetic and efficiency improvements.
3 bedroom terraced house for sale in Exning Road, Newmarket, CB8 — £240,000 • 3 bed • 1 bath • 699 ft²
3 bedroom end of terrace house for sale in Parkers Walk, Newmarket, CB8 — £265,000 • 3 bed • 1 bath • 831 ft²
3 bedroom terraced house for sale in Exning Road, Newmarket, CB8 — £225,000 • 3 bed • 1 bath • 785 ft²
3 bedroom terraced house for sale in Carson Walk, Newmarket, CB8 — £300,000 • 3 bed • 1 bath • 946 ft²
3 bedroom terraced house for sale in Manderston Road, Newmarket, CB8 — £300,000 • 3 bed • 1 bath • 882 ft²
3 bedroom terraced house for sale in George Lambton Avenue, Newmarket, CB8 — £270,000 • 3 bed • 1 bath • 904 ft²










































