Chain-free two-bedroom bungalow close to beach, Coastal Path and village amenities..
- Two bedrooms, contemporary shower room, well presented throughout
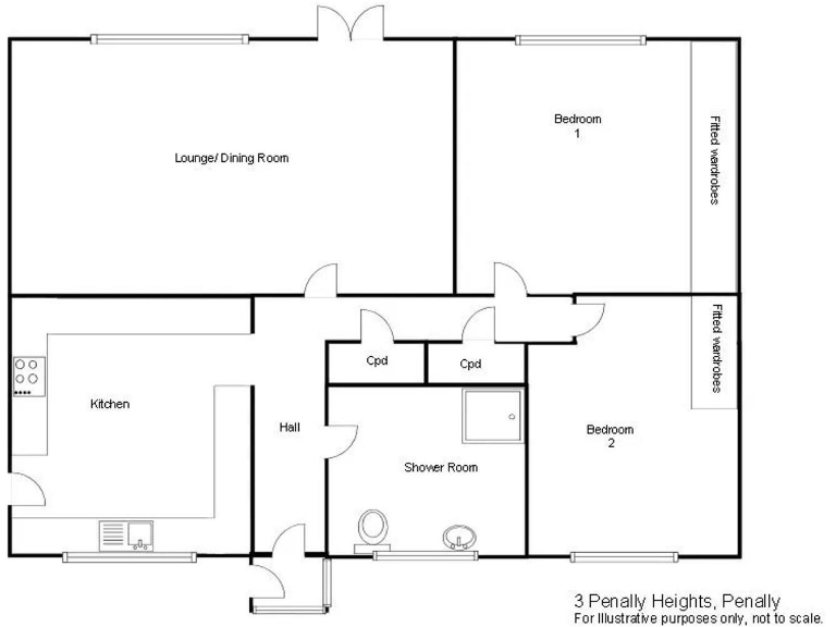
- Compact footprint c.450 sq ft, best for downsizers or first buyers
- Off-road block-paved parking for two vehicles
- Low-maintenance front and rear gardens, artificial lawns
- Elevated rear patio with space for hot tub or seating
- Two large powered timber sheds included
- Freehold; no upward chain; mains gas central heating
- Area shows high deprivation despite low crime and good connectivity
A neatly presented two-bedroom semi-detached bungalow in Penally Heights, offered chain free and ideal for retirement or downsizing. The single-storey layout, gas central heating and double glazing provide comfortable, low-maintenance living. South-west facing garden patio and rural headland views give a peaceful coastal outlook, while Tenby and the Pembrokeshire Coast Path are a short walk away.
Internally the accommodation is compact (about 450 sq ft) but well planned: a light lounge/diner opens to the rear patio, and the kitchen includes quality integrated Neff appliances. There are two fitted bedrooms and a contemporary shower room. Practical extras include a block-paved drive for two cars, two powered timber sheds, and artificial lawns for easy upkeep.
Important points to note: the property is small and will suit a retiree, first-time buyer or downsizer rather than a family needing lots of space. The immediate area is described as having high deprivation statistics despite low crime and excellent mobile/broadband connectivity; buyers should consider local services and community factors. Council Tax Band D and an Energy Efficiency Rating of C are current facts.
Overall this is a ready-to-move-into, low-maintenance bungalow in a popular village location close to beach, station and amenities. It represents sensible, compact coastal living with potential to personalise the garden patio area (space noted for a hot tub or sauna).
2 bedroom semi-detached bungalow for sale in Gorse Hill, 3 Penally Heights, Penally, SA70 — £275,000 • 2 bed • 1 bath • 635 ft²
2 bedroom bungalow for sale in Penally, Tenby, Pembrokeshire, SA70 — £230,000 • 2 bed • 1 bath • 539 ft²
2 bedroom semi-detached bungalow for sale in Crackwell Close, Penally, Tenby, SA70 — £250,000 • 2 bed • 1 bath • 1002 ft²
2 bedroom semi-detached bungalow for sale in Pentle Close, Pentlepoir, Saundersfoot, SA69 — £215,000 • 2 bed • 1 bath • 640 ft²
3 bedroom bungalow for sale in Penally, Tenby, Pembrokeshire, SA70 — £400,000 • 3 bed • 1 bath • 1204 ft²
2 bedroom detached bungalow for sale in Hawthorn Close, Pentlepoir, Saundersfoot, SA69 — £325,000 • 2 bed • 2 bath • 1295 ft²


























































