Approximately 7.83 acres of paddocks, gardens and yard
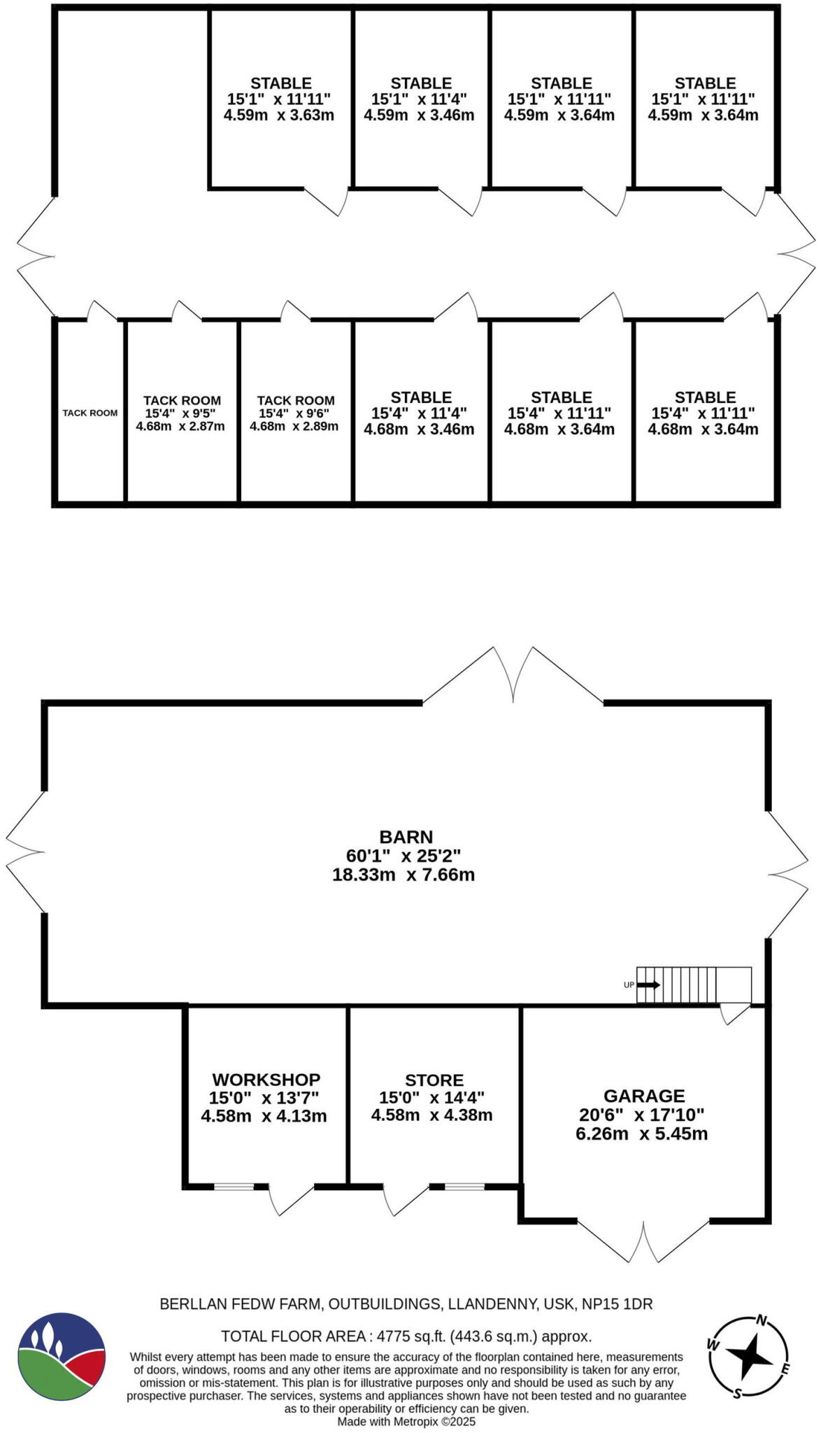
Set within about 7.83 acres of paddocks and gardens, Berllan Fedw Farm is a renovated three-bedroom detached farmhouse with substantial equestrian outbuildings. The main house has been sympathetically updated and is ready to occupy, while the wider yard includes an American barn with seven stables, two tack rooms, a kitchen and WC, a steel-framed barn, garage, two further stables and a 60m x 20m outdoor arena. Far-reaching countryside views and private, gated access give the site a secluded, rural character.
The accommodation offers traditional farmhouse features, a spacious principal bedroom, and a sitting room with a wood burner. A conservatory currently provides an airy viewing point to the surrounding landscape; planning permission has been granted to replace this with a single-storey extension to increase ground-floor living space. The plot is divided into paddocks and includes multiple parking areas capable of accommodating vehicles, trailers and larger equipment.
Practical considerations are straightforward: mains electricity and water are connected, heating is oil-fired via boiler and radiators, and drainage is private. Broadband speeds are very slow and mobile signal is average — important for anyone needing reliable connectivity. There is a public footpath running through one paddock and two neighbouring properties have a right of access along the shared track; these legal and access arrangements should be noted by buyers.
This property will suit buyers seeking a ready-to-use smallholding or equestrian base with scope for further improvement or conversion of outbuildings (subject to consents). It combines strong rural privacy with surprisingly good road links to Newport, Cardiff and Bristol. Council tax is high and the site sits in a remote farming community, so buyers should expect the costs and commitments associated with running a country property of this scale.
3 bedroom detached house for sale in Barn Farm, Earlswood, Chepstow, Monmouthshire, NP16 — £850,000 • 3 bed • 2 bath • 3981 ft²
4 bedroom detached house for sale in Llangwm, Usk, NP15 — £850,000 • 4 bed • 1 bath • 1043 ft²
5 bedroom detached house for sale in Cross Ash, Abergavenny, Monmouthshire, NP7 — £595,000 • 5 bed • 2 bath • 2328 ft²
3 bedroom detached house for sale in Llanbadoc, Usk, Monmouthshire, NP15 — £650,000 • 3 bed • 1 bath • 1101 ft²
3 bedroom farm house for sale in Newcastle, Monmouth, NP25 — £925,000 • 3 bed • 1 bath • 1791 ft²
4 bedroom farm house for sale in Llansoy, Usk, Monmouthshire, NP15 — £2,525,000 • 4 bed • 3 bath • 24133 ft²


































































































































































































































