**Standout Features:**
- Mixed-use property with ground floor restaurant and 3-bed self-contained flat
- Newly renovated flat with a high standard finish
- Strong rental income of £50,400 per annum, yielding 7.25%
- Prime location in Tonbridge town center, close to amenities and transport links
- Freehold tenure, ensuring ownership flexibility
**Downsides:**
- Crime rate in the area is very high
- Potential maintenance or management considerations with mixed-use occupancy
- Relatively small plot size
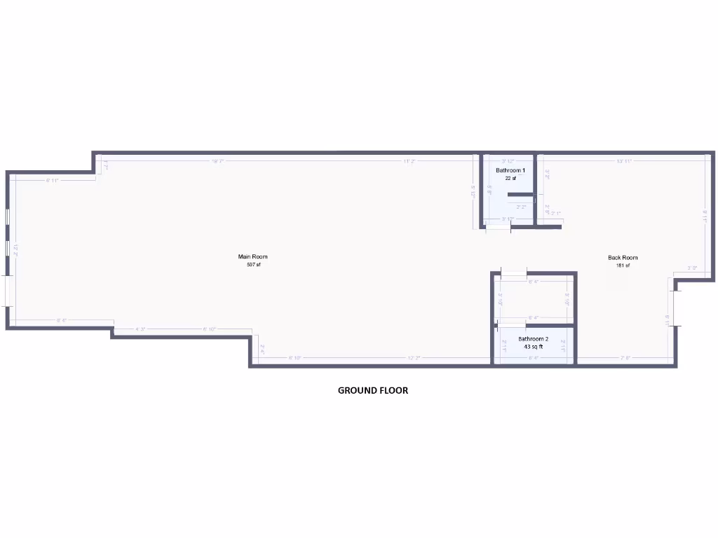
This exceptional mixed-use property is a prime investment opportunity nestled in the bustling heart of Tonbridge. Boasting a newly refurbished three-bedroom flat above a well-positioned ground floor restaurant, this asset offers a lucrative rental income of £50,400 per year—a compelling gross initial yield of 7.25%. The flat's modern finishes provide a move-in ready appeal, while the restaurant space is equipped with a three-phase electric supply, making it ideal for a thriving dining business.
Located just a short walk from the railway station and major retailers like Sainsbury's, this property is surrounded by vibrant local amenities, enhancing its attractiveness for renters—whether families or young professionals. Although the area experiences a high crime rate, careful management of the property can mitigate potential concerns. With freehold ownership and the possibility to tailor future renovations, this is a unique investment opportunity not to be overlooked. Seize the chance to own a piece of Tonbridge's lively urban landscape; opportunities like this don't last long!
High street retail property for sale in High Street, Tonbridge, Kent, TN9 — £600,000 • 1 bed • 1 bath • 4357 ft²
High street retail property for sale in 158 High Street & 2a Bank Street, Tonbridge, Tonbridge, TN9 1BB, TN9 — £495,000 • 1 bed • 1 bath • 3050 ft²
Commercial property for sale in High Street, Tunbridge, TN9 — £350,000 • 5 bed • 2 bath
Commercial property for sale in 1-2, Botany, Tonbridge, TN9 1SA, TN9 — £280,000 • 1 bed • 1 bath • 1084 ft²
Commercial property for sale in 24 High Street, Tonbridge, TN9 1EJ, TN9 — £310,000 • 1 bed • 1 bath • 674 ft²
3 bedroom mixed use property for sale in 82/82A Victoria Road, Tunbridge Wells, Kent, TN1 — £650,000 • 3 bed • 1 bath • 1968 ft²


































