Spacious four-bedroom home with flexible living and low-maintenance outside space.
Driveway to front plus rear garage and additional parking
Extended and second-floor conversion increases living space
Open-plan ground floor with multiple reception spaces
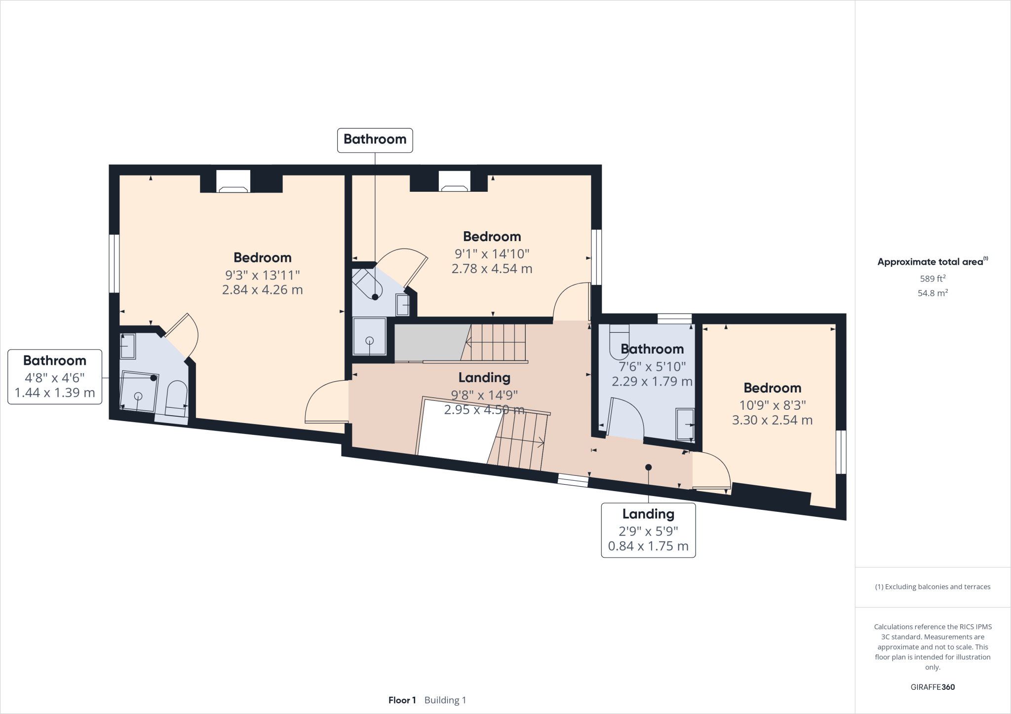
Two en suite double bedrooms plus an additional double and large single
Modern kitchen, integrated appliances, patio to raised garden terrace
Low-maintenance landscaped garden with artificial turf and borders
Solid brick walls (likely no insulation) and EPC D; further upgrades advised
Located in outer-city area with above-average crime and higher deprivation
This extended early-20th-century end-terrace blends period character with recent renovation to create a spacious, practical family home. An added second-floor conversion and open-plan ground floor provide flexible living across approximately 1,604 sq ft, while original fireplaces and log burners retain a warm, rustic feel.
The ground floor flows through lounge, second reception, dining and a modern kitchen with integrated appliances and patio doors to a raised terrace. Practical features include a porch, smart hallway, downstairs WC, driveway to the front and a rear garage with additional parking — useful for multi-car households.
Accommodation includes two en suite double bedrooms and a large single on the first floor, with a further double and shower room on the converted second floor. Low-maintenance landscaping with artificial turf and planted borders suits busy families or buyers seeking minimal garden upkeep.
Buyers should note a few material considerations: the property has solid brick walls (likely uninsulated as built) and an EPC rating of D, so further insulation or improvements could reduce running costs. The neighbourhood is described as an outer-city area with higher-than-average crime and wider area deprivation indicators; council tax is low and the tenure is freehold, which may appeal to budget-conscious purchasers.
4 bedroom terraced house for sale in Ashgate Road, Chesterfield, Derbyshire, S40 — £359,995 • 4 bed • 4 bath • 1758 ft²
4 bedroom terraced house for sale in Ashgate Road, Ashgate, Chesterfield, S40 — £359,995 • 4 bed • 4 bath • 1676 ft²
4 bedroom detached house for sale in Chatsworth Road, Chesterfield, S40 — £425,000 • 4 bed • 2 bath • 1405 ft²
4 bedroom detached house for sale in Loxley Close, Ashgate, Chesterfield, S40 — £485,000 • 4 bed • 2 bath • 1614 ft²
5 bedroom semi-detached house for sale in Shaftesbury Avenue, Ashgate, Chesterfield, Derbyshire, S40 — £520,000 • 5 bed • 4 bath • 1872 ft²
4 bedroom detached house for sale in 2 Avondale Road, Chesterfield, S40 — £400,000 • 4 bed • 3 bath • 3293 ft²






























































































































