**Standout Features:**
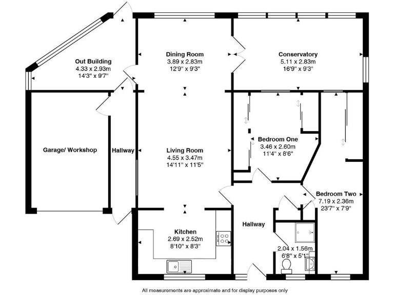
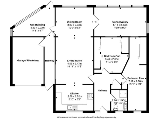
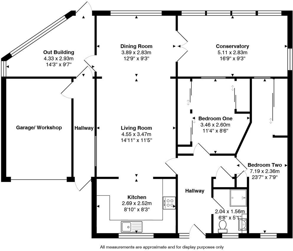
- Spacious 2-bedroom semi-detached bungalow in a serene cul-de-sac.
- Extensively bright living room with large bay window.
- Generous conservatory providing panoramic garden views.
- Off-street parking with additional space for multiple vehicles.
- Located in the charming village of Crondall, surrounded by farmland.
- Freehold tenure offers full ownership.
**Potential Concerns:**
- Property requires modernization and maintenance, particularly the exterior.
- Average broadband speeds may not suit all lifestyle needs.
Experience the charm of village living with this extensive semi-detached bungalow in Crondall, featuring two bedrooms and a bright, inviting large conservatory that overlooks your private garden. The layout includes a comfortable living room and a separate dining area, providing ample space for relaxation and entertaining. Set within a cul-de-sac adjoining tranquil farmland, this home offers serenity while being conveniently close to local amenities.
Though the property requires some renovation, it presents an excellent opportunity for first-time buyers or those looking to invest in a property with significant potential for customization. With a well-sized plot and off-street parking, envision creating your ideal living space in a picturesque and affluent neighborhood. Emphasize the advantages of living in a comfortable suburb with excellent local schools and community amenities, making this an ideal choice for families seeking a secure and inviting environment. Don't miss this chance to own a property that combines comfort, potential, and location—it won't be on the market for long!
2 bedroom detached bungalow for sale in Pankridge Street, Crondall, GU10 — £525,000 • 2 bed • 1 bath • 656 ft²
3 bedroom semi-detached house for sale in Church Street, Crondall, Farnham, Hampshire, GU10 — £600,000 • 3 bed • 2 bath • 1058 ft²
2 bedroom semi-detached bungalow for sale in Chiltern Avenue, Farnborough, GU14 — £335,000 • 2 bed • 1 bath • 498 ft²
2 bedroom bungalow for sale in Farnham Park Close, Farnham, Surrey, GU9 — £625,000 • 2 bed • 1 bath • 871 ft²
2 bedroom bungalow for sale in Trinity Hill, Farnham, Surrey, GU9 — £400,000 • 2 bed • 1 bath • 555 ft²
2 bedroom semi-detached bungalow for sale in Frimley Green Road, Frimley Green, Camberley, GU16 — £425,000 • 2 bed • 1 bath • 876 ft²


































