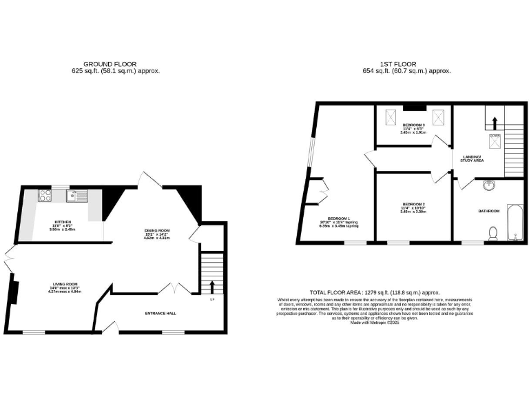
Spacious three-bed period home on large plot, chain free and ready for renovation..
- Three generous bedrooms with large landing study area
- Spacious period living and dining rooms, high ceilings
- Large plot with mature side gardens and patio terrace
- Garage to side plus off-street parking
- Requires modernisation throughout; priced to reflect condition
- Signs of damp/mould reported in dining room area
- EPC band F; likely needs energy improvements and insulation
- Chain free sale in a quiet village location
This double-fronted period home occupies a generous plot on the old Brigham mansion site, offering high ceilings, arched windows and spacious rooms that suit family life. The ground floor has a separate dining room, living room and fitted kitchen; upstairs are three large bedrooms, a family bathroom and a wide landing with a handy study area.
The property requires modernisation throughout and is priced accordingly. There are signs of wear and damp in places and the house currently sits in EPC band F; cavity walls are present with no confirmed insulation. The gas boiler and radiator system provide mains heating but expect refurbishment work and updating to bring the home up to modern standards.
Outside there is off-street parking, a side garage and mature gardens mainly to one side with a patio terrace for outdoor entertaining. Offered chain free in a quiet village with low crime and good nearby schools, this is a strong opportunity for a growing family or buyers seeking a renovation project with substantial space and countryside character.
3 bedroom terraced house for sale in High Brigham, Brigham, Cockermouth, CA13 — £180,000 • 3 bed • 2 bath • 1406 ft²
2 bedroom terraced house for sale in Spring Croft Close, Brigham, Cockermouth, CA13 0TH, CA13 — £180,000 • 2 bed • 1 bath • 681 ft²
3 bedroom detached house for sale in High Brigham, Brigham, Cockermouth, CA13 — £245,000 • 3 bed • 1 bath • 1176 ft²
5 bedroom detached house for sale in Hotchberry Road, Brigham, Cockermouth, CA13 0TQ, CA13 — £700,000 • 5 bed • 3 bath • 3036 ft²
6 bedroom detached house for sale in Lime Kiln, Low Road, Brigham, Cockermouth, Cumbria, CA13 0XH, CA13 — £650,000 • 6 bed • 4 bath • 4000 ft²
2 bedroom semi-detached house for sale in High Brigham, Brigham, Cockermouth, CA13 — £179,950 • 2 bed • 1 bath • 822 ft²






































































