MK42 8EP - 1 bed spacious onebed flat in St Johns Street, MK42 8EP

View on Property Piper

1 bedroom flat for sale in St. Johns Street, Kempston, Bedford, Bedfordshire, MK42

Summary - 24A ST JOHNS STREET KEMPSTON BEDFORD MK42 8EP

1 bed 1 bath Flat

Move-in ready first purchase or low-cost rental opportunity in central Kempston.
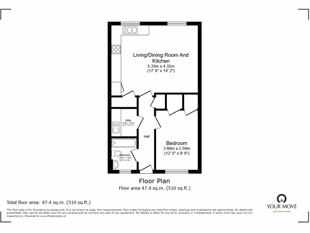
- Large 17ft x 14ft open-plan living/dining room with integrated kitchen
- Double bedroom with two built-in wardrobes
- Useful fitted utility room and pantry storage
- Communal garden and first-come residents' off-street parking
- Leasehold with circa 90–91 years remaining
- Affordable service charge c. £395.91pa; ground rent £10pa
- Council Tax Band A and EPC C; fast broadband available
- Local area: higher crime rate and indicators of deprivation
This well-presented one-bedroom first-floor flat offers unusually generous living space for the price, centred on a large 17ft x 14ft open-plan living/dining room with an integrated kitchen. The property includes practical extras—built-in bedroom wardrobes, a fitted utility room, pantry storage and a fitted bathroom with shower—making it move-in ready for a first-time buyer or a straightforward buy-to-let investment.

Externally the flat benefits from communal gardens and a residents’ off-street parking area (first-come, first-served). Running costs are modest: an affordable service charge (c. £395.91pa), low ground rent (£10pa) and Council Tax Band A. Broadband speeds are fast and heating is by mains gas boiler and radiators.

Important points to note: the property is leasehold with about 90–91 years remaining on the lease; buyers should budget for lease considerations and any future extension costs. The parking is communal rather than allocated and the neighbourhood records higher-than-average crime and local area deprivation indicators, which may affect family buyers or those seeking a very low-crime location.

Overall this compact but roomy apartment is best suited to a first-time buyer seeking low running costs and a straightforward purchase (no chain), or an investor looking for an affordable central Kempston let with good tenant demand potential.

Property Details

Brochure Descriptions

Image Descriptions

Floorplan Description

Rooms

Textual Property Features

Target Audience

AI Tags

Detected Visual Features

EPC Details

Nearby Schools

Nearest Bars And Restaurants

,,,,}

Nearest General Shops

,,}

Nearest Grocery shops

,,}

Nearest Supermarkets

,,}

Nearest Religious buildings

,,}

Nearest Medical buildings

,,,}

Nearest Airports

}

Nearest Leisure Facilities

,,,,}

Nearest Tourist attractions

,,}

Nearest Train stations

,,,,}

Nearest Bus stations and stops

,,,,}

Nearest Hotels

,,}

Tags

Local Market Stats

AirBnB Data

Similar Properties

Meta

High Res Images

Compatible Images

Low res Images

Thumbnails

Raw Images

High Res Floorplan Images

Compatible Floorplan Images

Low res Floorplan Images

FloorplanImages Thumbnail

Raw Floorplan Images