DT7 3DS - 2 bedroom bungalow for sale in Fairfield Park, Lyme Regis,…

View on Property Piper

2 bedroom bungalow for sale in Fairfield Park, Lyme Regis, Dorset, DT7

Summary - 42, FAIRFIELD PARK, LYME REGIS DT7 3DS

2 bed 1 bath Bungalow

**Key Features:**
- Terraced bungalow with partial sea views
- Two double bedrooms and modern shower room
- Bright conservatory and spacious living room
- Manicured front and rear gardens, easy to maintain
- Garage with access via shared driveway, plus ample off-street parking
- Located in a quiet, desirable residential neighborhood
- Chain-free and broadband ready

Nestled in the picturesque coastal town of Lyme Regis, this charming terraced bungalow is perfect for first-time buyers or those seeking a tranquil retreat. Enjoy lovely views from the living spaces, particularly the airy master bedroom which overlooks the stunning sea and the iconic Cobb Harbour. With a well-equipped kitchen leading to a bright conservatory, there’s ample space for relaxation and entertainment.

The property boasts mature gardens both front and back, along with a convenient garage and unrestricted on-street parking, making it family-friendly and practical. While the interior has potential for modernization, the superb location provides a peaceful community feel with easy access to local amenities and stunning coastal scenery. With affordable council tax and fast broadband, this home is ideal for anyone looking to blend comfort, convenience, and coastal living. Don't miss out on this chain-free opportunity in an affluent and desirable area!

Property Details

Brochure Descriptions

Image Descriptions

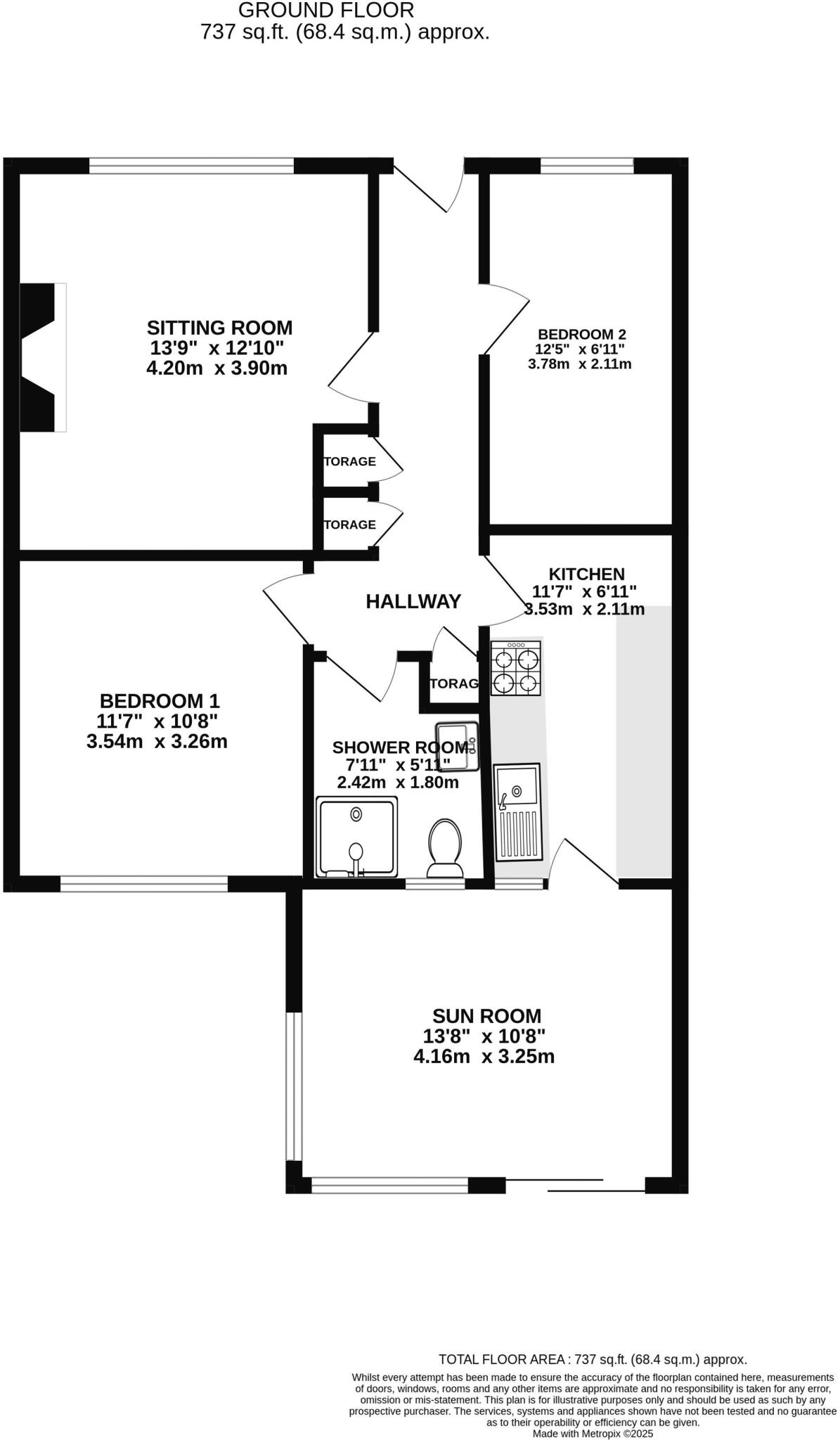
Floorplan Description

Rooms

Textual Property Features

Detected Visual Features

Nearby Schools

Nearest Bars And Restaurants

,,,,}

Nearest General Shops

,,}

Nearest Grocery shops

,,}

Nearest Supermarkets

,,}

Nearest Religious buildings

,,}

Nearest Medical buildings

,,,}

Nearest Airports

}

Nearest Leisure Facilities

,,,,}

Nearest Tourist attractions

,,}

Nearest Train stations

,,,,}

Nearest Bus stations and stops

,,,,}

Nearest Hotels

,,}

Tags

Local Market Stats

AirBnB Data

Similar Properties

Meta

High Res Images

Compatible Images

Low res Images

Thumbnails

Raw Images

High Res Floorplan Images

Compatible Floorplan Images

Low res Floorplan Images

FloorplanImages Thumbnail

Raw Floorplan Images