Flexible three-storey home with outbuilding and off-street parking.
Four bedrooms and three bathrooms across three floors, including en suite
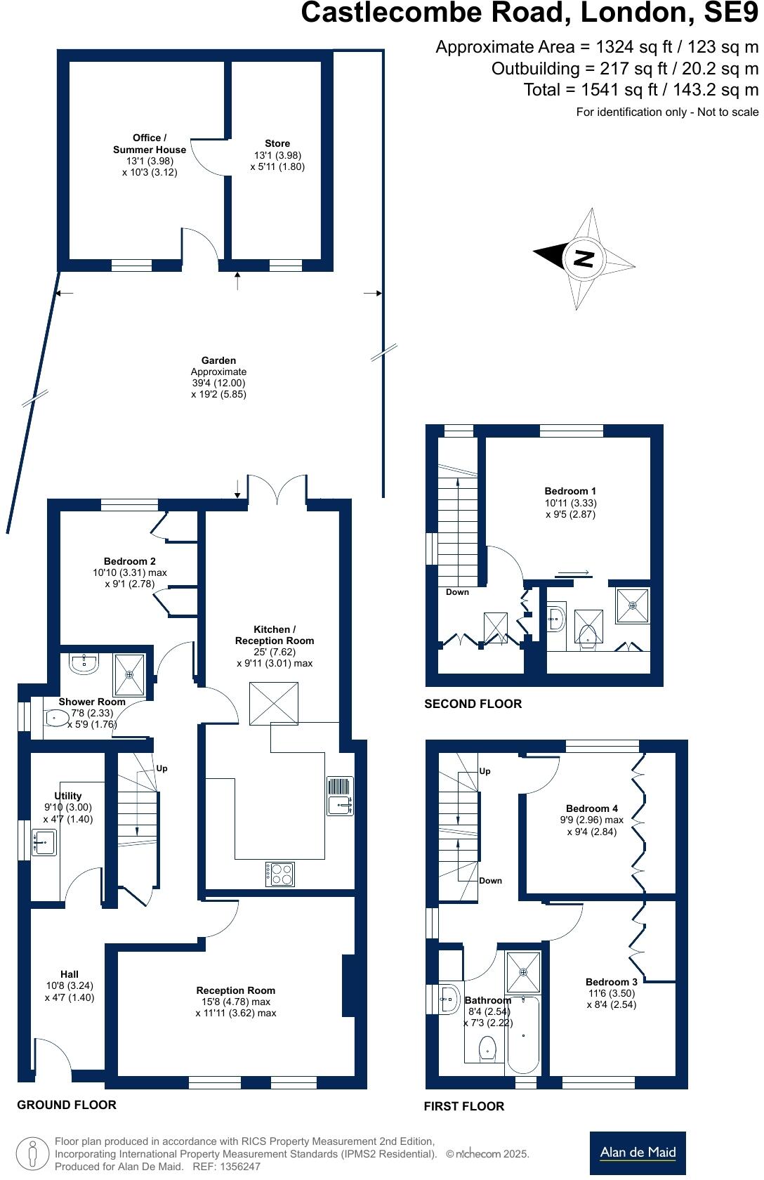
This versatile 4-bedroom, 3-bath semi-detached house offers about 1,500 sq ft over three floors, suited to families or home-workers needing flexible space. The layout includes a bright reception room, an open-plan kitchen/dining area with garden access, a ground-floor bedroom and shower room for guests or multi-generational use, and a top-floor master with en suite. An outbuilding at the rear provides a dedicated home office, studio or gym.
Practical features include a paved forecourt/drive with garage parking, mains gas boiler and radiators, double glazing, fitted shutters and bespoke wardrobes. The property is freehold with Council Tax band C, and broadband speeds are reported as fast — useful for remote working or streaming.
Buyers should note a few material considerations. The area is described as deprived with above-average local crime levels and hampered neighbourhood classification; this may affect long-term resale or rental demand. The house dates from the 1930–49 period with cavity walls assumed to lack insulation, so buyers should budget for potential energy-efficiency upgrades. The plot and garden are small, limiting outdoor space and extension potential.
Overall, this is a practical family home offering substantial internal space, flexible ancillary accommodation, and off-street parking. It will suit purchasers who prioritise internal layout and a home-office outbuilding, and who are prepared to manage local-area challenges and invest in insulation or minor improvements if desired.
4 bedroom semi-detached house for sale in Avondale Road, London, SE9 — £800,000 • 4 bed • 2 bath • 1341 ft²
3 bedroom end of terrace house for sale in Prince John Road, London, SE9 — £550,000 • 3 bed • 2 bath • 1381 ft²
4 bedroom house for sale in Holland Garden, London, SE9 — £899,995 • 4 bed • 3 bath • 1842 ft²
3 bedroom end of terrace house for sale in Rochester Way, SE9 — £475,000 • 3 bed • 1 bath • 923 ft²
4 bedroom semi-detached house for sale in Felhampton Road, London, SE9 — £675,000 • 4 bed • 1 bath • 1263 ft²
3 bedroom end of terrace house for sale in Castlewood Drive, London, SE9 — £525,000 • 3 bed • 1 bath • 916 ft²










































































































































