Fully serviced freehold plot with planning consent for a contemporary four-bedroom family home..
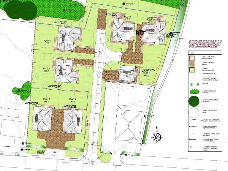
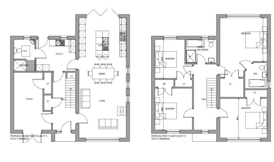
Planning consent in place for a two-storey, four-bedroom dwelling (Plot 6)
Fully serviced freehold plot; decent plot size
Contemporary proposed elevations and modern design plans
No flooding risk; fast broadband speeds
Rural hamlet location between Bishop Auckland and Barnard Castle
Limited local amenities; small village services only
Average mobile signal and average local crime levels
Buyer responsible for build, building regs and development costs
This is Plot 6 — a fully serviced, freehold self-build plot with planning consent for a contemporary two-storey, four-bedroom dwelling. Set in rural Butterknowle in the Gaunless Valley, the site backs onto open countryside and sits between Bishop Auckland and Barnard Castle, offering a quiet hamlet setting with strong local character.
The plot arrives with planning permission and proposed modern elevations, reducing pre-application risk for buyers who wish to follow the submitted scheme. Broadband speeds are fast and there is no flooding risk recorded; nearby primary and secondary schools are rated Good to Outstanding, which supports family living.
Buyers should note this is a self-build opportunity: construction, building regulations compliance, and any S106 or planning conditions must be managed by the purchaser. The area is relatively remote with limited local amenities (small shops, farm shop, cafe) and average mobile signal — convenient for countryside living but less so for those needing frequent urban services.
Overall, the plot is well-located for a purchaser wanting to deliver a modern home in a scenic rural location, but it will require the time, budget and project management associated with a new-build self-build project.
Plot for sale in Copley Lane, Butterknowle, Bishop Auckland, Durham, DL13 — £105,000 • 1 bed • 1 bath
Plot for sale in Copley Lane, Butterknowle, Bishop Auckland, Durham, DL13 — £105,000 • 1 bed • 1 bath • 388 ft²
Plot for sale in Moor Lane, Newsham, Richmond, DL11 — £200,000 • 1 bed • 1 bath • 2270 ft²
Plot for sale in Building Plot 3 at Warwick Gardens, Byers Green, DL16 — £50,000 • 1 bed • 1 bath
Land for sale in Paradise Lane, Witton Park, Bishop Auckland, DL14 — £110,000 • 1 bed • 1 bath • 645 ft²
Land for sale in Thornley Road, Tow Law, DL13 — £75,000 • 1 bed • 1 bath • 4542 ft²














