**Standout Features:**
- Extended mid-terrace house in the popular Priestwood location.
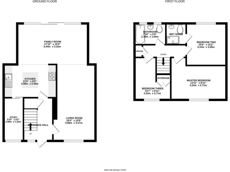
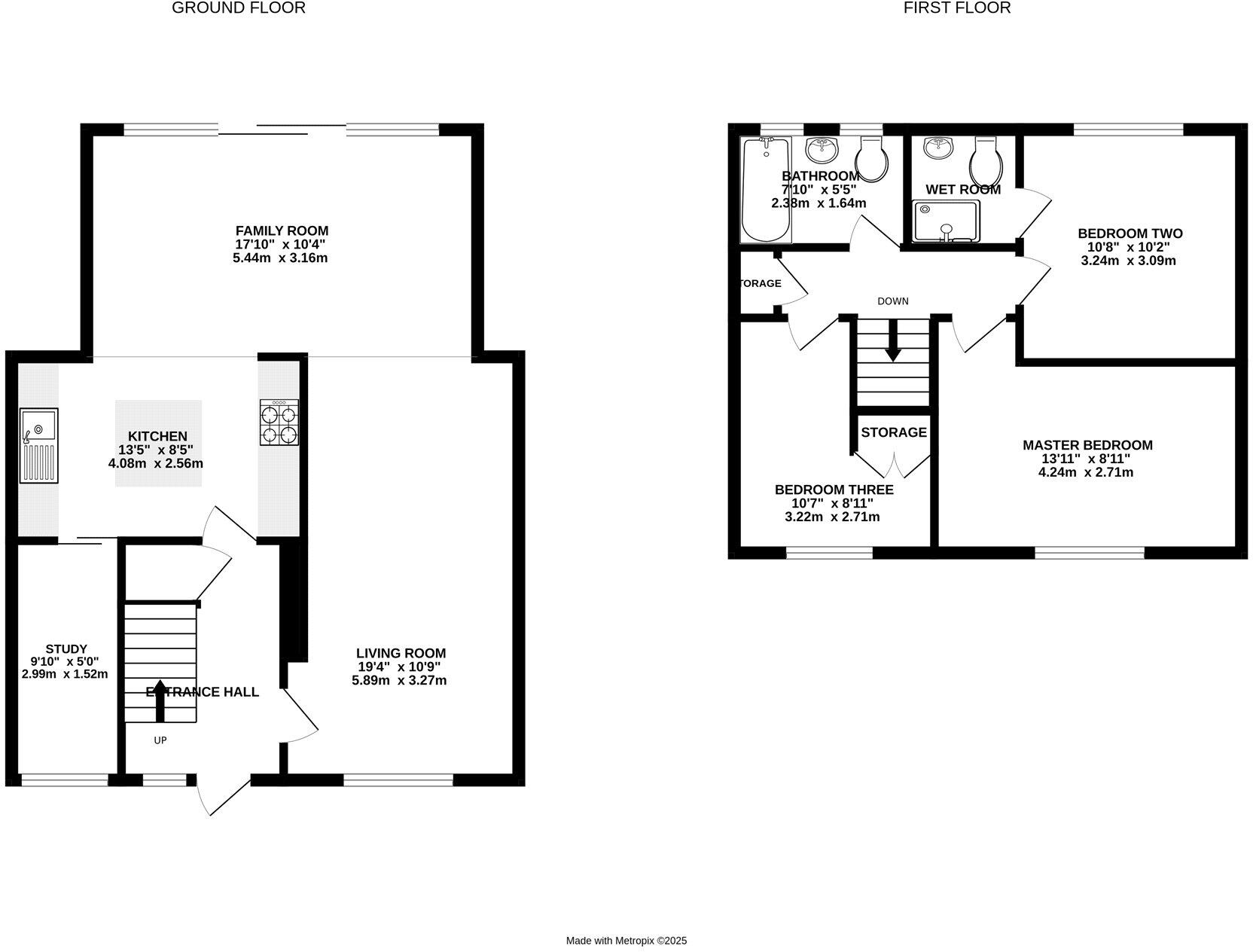
- Spacious open-plan living, kitchen, and dining area perfect for families or entertaining.
- En-suite wet room in the second bedroom.
- Well-maintained west-facing rear garden with patio and lawn.
- Short walk to Bracknell town centre, offering shopping, transport, and leisure amenities.
- Good internal condition with modern decoration and lighting.
**Summary:**
Discover this inviting mid-terrace home in the highly sought-after Priestwood area, ideal for families or as a smart investment opportunity. The property features a stylish open-plan living area, complete with a modern kitchen equipped with an island, ample storage, and generous spaces perfect for entertaining or everyday family life. With three well-proportioned bedrooms, including a generous second bedroom with an en-suite wet room, this home offers functional comfort.
Step outside to your west-facing rear garden, thoughtfully designed for relaxation and outdoor enjoyment, providing a perfect spot for family gatherings or peaceful evenings. This residence is buffered by the conveniences of Bracknell town center just a short stroll away, where excellent shopping, dining, and leisure facilities await. Additionally, you'll benefit from off-street residential parking.
While the property is in good condition generally, potential buyers should consider the need for ongoing maintenance reflective of its construction era. This charming home is ready for its next chapter—act fast to secure a prime piece of real estate before it’s gone!
3 bedroom terraced house for sale in Horsneile Lane, Bracknell, Berkshire, RG42 — £410,000 • 3 bed • 1 bath • 809 ft²
2 bedroom end of terrace house for sale in Fraser Road, Bracknell, Berkshire, RG42 — £375,000 • 2 bed • 1 bath • 647 ft²
3 bedroom terraced house for sale in Merryhill Road, Bracknell, Berkshire, RG42 — £400,000 • 3 bed • 1 bath • 1283 ft²
3 bedroom end of terrace house for sale in Clacy Green, Bracknell, Berkshire, RG42 — £470,000 • 3 bed • 1 bath • 1126 ft²
4 bedroom end of terrace house for sale in Agar Crescent, Bracknell, Berkshire, RG42 — £475,000 • 4 bed • 2 bath • 1107 ft²
4 bedroom end of terrace house for sale in Hawthorn Close, Bracknell, Berkshire, RG42 — £500,000 • 4 bed • 2 bath • 1522 ft²


























































