Convenient for station, shops and outstanding local secondary school.
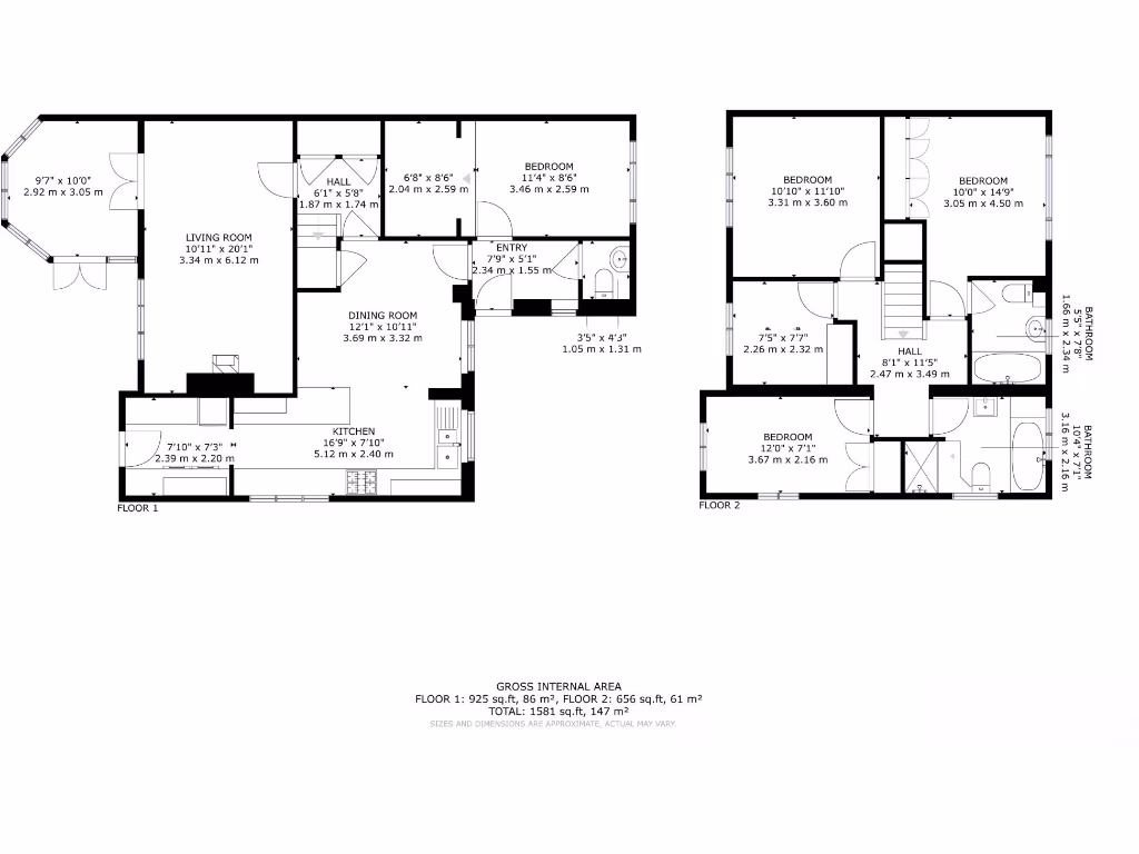
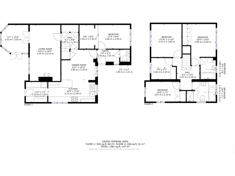
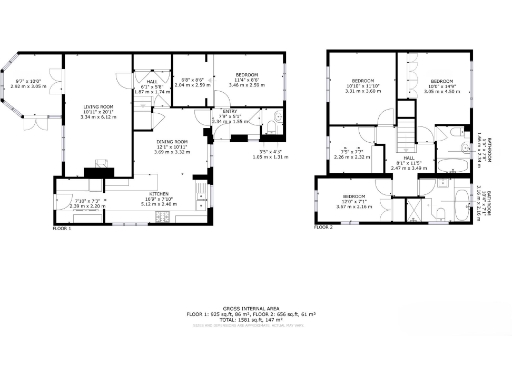
4 double bedrooms including main en-suite and fitted wardrobes.
Extended accommodation with open-plan kitchen/diner and conservatory.
Third reception room flexible as study, playroom or extra bedroom.
Double-width driveway parking for several vehicles; freehold tenure.
Generous, private rear garden laid mainly to lawn; corner plot.
Close to town centre, International station, Sainsbury’s and top schools.
Built c.1976–82; some areas likely require modernisation or updating.
Double glazing present but installation date unknown; review for replacement.
This extended four-bedroom detached house sits on a generous corner plot in a well-established Ashford neighbourhood. Ground-floor open-plan kitchen/diner, living room opening to a conservatory, and a third reception room give flexible family living and entertaining space. The main bedroom includes fitted wardrobes and an en-suite; there is also a utility room and downstairs cloakroom for everyday practicality.
Outside offers double-width driveway parking for several vehicles and a private, non-overlooked rear garden laid mainly to lawn — a safe play area and space for summer gatherings. The property is freehold, close to the town centre, the International station, major shops including Sainsbury’s, and highly regarded schools such as Highworth Grammar.
Practical points to note: the house dates from the late 1970s/early 1980s so some internal elements may be dated and could benefit from modernisation. Double glazing is present but install date is unknown. Council tax is above average for the area, and local recorded crime levels are above average; buyers should consider security and insurance implications.
4 bedroom detached house for sale in Malvern Road, Ashford, TN24 — £475,000 • 4 bed • 2 bath • 1313 ft²
4 bedroom detached house for sale in Canon Woods Way,Kennington TN24 — £450,000 • 4 bed • 2 bath • 1205 ft²
3 bedroom detached house for sale in Brendon Drive, Ashford TN24 — £475,000 • 3 bed • 1 bath • 1194 ft²
4 bedroom detached house for sale in Highfield Road, Willesborough, TN24 — £450,000 • 4 bed • 1 bath • 975 ft²
4 bedroom detached house for sale in Lucilla Avenue, Ashford, Kent, TN23 — £550,000 • 4 bed • 2 bath • 1117 ft²
4 bedroom detached house for sale in Maidstone Road, Ashford, TN25 — £825,000 • 4 bed • 3 bath • 2745 ft²


























































