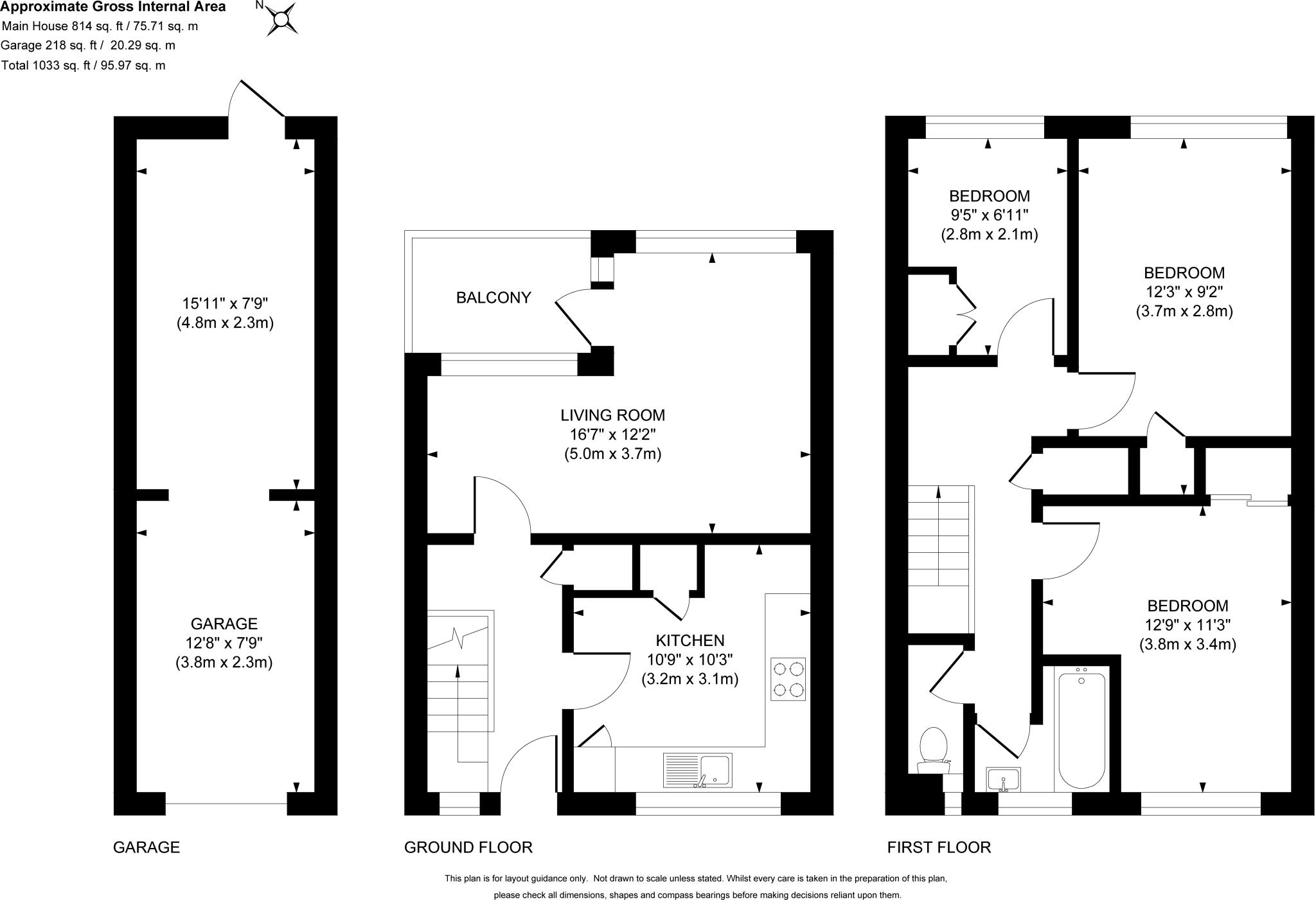
**Standout Features:**
- Three bedrooms in a split-level layout
- Modern kitchen/breakfast room and family bathroom
- Large lounge with private balcony
- Double-length garage with parking
- Walking distance to Woking Town Centre and mainline station
- Access to communal gardens and play area
**Potential Concerns:**
- Property is leasehold
- Average size at 814 sq. ft.
- Building constructed between 1930-1949, may require some updates
This inviting three-bedroom split-level apartment is perfect for families and first-time homeowners looking for a blend of comfort and convenience. With a spacious kitchen/breakfast room, a modern family bathroom, and a welcoming lounge that opens onto a private balcony, residents can enjoy both relaxation and community living. The double-length garage provides essential parking and storage, while the surrounding communal gardens offer a green space for outdoor activities.
Positioned within walking distance of Woking’s thriving town centre and mainline train station, this property is well-connected for those commuting to London. Furthermore, local schools, including highly-rated institutions, add appeal for families prioritizing education. The building, dating back to the mid-20th century, offers character, though some may consider updates for modern living.
Don’t miss this opportunity to make this home your own with the potential for renovations and personalization, while enjoying the exclusivity of a community-oriented lifestyle. Act fast; possibilities like this won’t last long!
3 bedroom flat for sale in Woking, GU22 — £325,000 • 3 bed • 1 bath • 792 ft²
3 bedroom maisonette for sale in Beech Vale, Woking, Surrey, GU22 — £250,000 • 3 bed • 1 bath • 791 ft²
2 bedroom flat for sale in Radstone Court, Woking, Surrey, GU22 — £250,000 • 2 bed • 1 bath • 801 ft²
2 bedroom flat for sale in Park Drive, Woking, Surrey, GU22 — £230,000 • 2 bed • 1 bath • 770 ft²
3 bedroom flat for sale in Laleham Court, Horsell, Woking, Surrey, GU21 — £320,000 • 3 bed • 1 bath • 928 ft²
3 bedroom apartment for sale in Laleham Court, Chobham Road, Woking, Surrey, GU21 — £350,000 • 3 bed • 1 bath • 1017 ft²


















































