Substantial period pub with function room and strong broadband — ideal for investor or owner operator.
Freehold village pub with eight bedrooms and three bathrooms
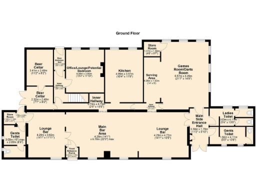
A substantial village freehold public house with accommodation and clear income potential. Set on a large plot with extensive main road frontage and generous off-street parking, the property includes a main bar, lounge bar, games/darts room and a function room seating 65+ — ideal for events, dining or diversified trading.
The first-floor accommodation has been fully refurbished and provides eight bedrooms and three bathrooms, making the site well suited to a live‑in owner operator, guest house or holiday‑let conversion. Modern connectivity is a standout asset: full‑fibre broadband with speeds over 900Mbps is available throughout the building and garage.
Notable practical details to consider: the building is a period granite/whinstone construction (pre‑1900) with assumed no wall insulation, and primary heating is by electric storage heaters (an oil‑fired system is also referenced in the property details). There is no mobile signal on site. The property lies in a very deprived rural ward but benefits from very low local crime and proximity to Cardigan Bay (approximately 15 minutes).
This freehold pub offers a rare mix of village presence, trading room and letting potential. It will suit an investor or owner‑operator prepared to develop its trading offer, address traditional building fabric and capitalise on the strong broadband and event/visitor market in the Clettwr Valley.
 Pub for sale in CEREDIGION - COASTAL VILLAGE PUBLIC HOUSE, Cross Inn, Carmarthenshire, SA44 — £345,000 • 1 bed • 1 bath • 829 ft²
 Pub for sale in CEREDIGION - COASTAL VILLAGE PUBLIC HOUSE, Cross Inn, Carmarthenshire, SA44 — £345,000 • 1 bed • 1 bath • 829 ft² Pub for sale in Synod Inn, Llandysul, Cardiganshire, SA44 6JD, SA44 — £220,000 • 3 bed • 1 bath
 Pub for sale in Synod Inn, Llandysul, Cardiganshire, SA44 6JD, SA44 — £220,000 • 3 bed • 1 bath Commercial property for sale in Ffosyffin, Aberaeron, SA46 — £480,000 • 2 bed • 2 bath • 2132 ft²
 Commercial property for sale in Ffosyffin, Aberaeron, SA46 — £480,000 • 2 bed • 2 bath • 2132 ft² Restaurant for sale in West Wales - Traditional Public House And Restaurant On The Edge Of Busy Market Town, SA38 — £325,000 • 3 bed • 1 bath
 Restaurant for sale in West Wales - Traditional Public House And Restaurant On The Edge Of Busy Market Town, SA38 — £325,000 • 3 bed • 1 bath Pub for sale in Carmarthenshire - Village Centre Freehouse, SA39 — £185,000 • 3 bed • 1 bath
 Pub for sale in Carmarthenshire - Village Centre Freehouse, SA39 — £185,000 • 3 bed • 1 bath 5 bedroom house for sale in Alltyrodyn Arms, Rhydowen, SA44 — £500,000 • 5 bed • 3 bath • 4766 ft²
 5 bedroom house for sale in Alltyrodyn Arms, Rhydowen, SA44 — £500,000 • 5 bed • 3 bath • 4766 ft²






























































































































































































