Affordable starter with garden and parking, ideal for first-time buyers.
Three bedrooms and family bathroom in simple, functional layout
Private rear garden plus off-street parking at the front
Freehold tenure; approx. 896 sq ft (average sized)
Built 1930–1949 with filled cavity walls and double glazing
Mains gas boiler and radiators; services not independently tested
Ready to move into but requires cosmetic modernization throughout
Council Tax Band A — very low running costs
Located in a working-class area; mix of school Ofsted ratings, one requires improvement
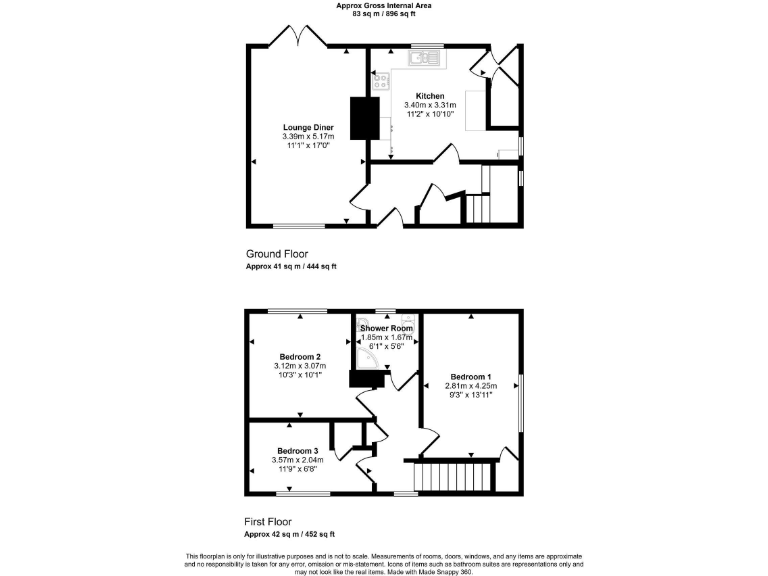
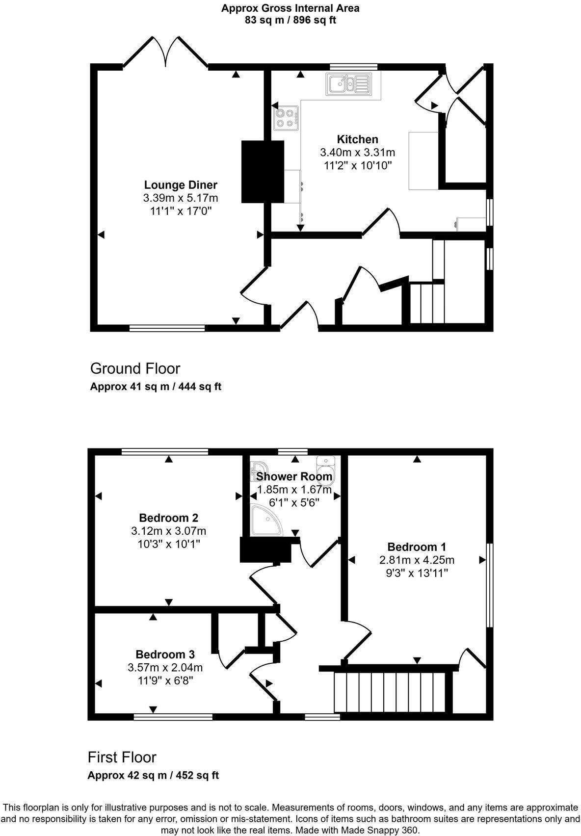
Set on a quiet Acklam street, this three-bedroom semi-detached home offers an affordable, move-in-ready base for first-time buyers or starters. The layout is straightforward: lounge, practical kitchen, ground-floor WC, three bedrooms and a family bathroom across about 896 sq ft. A private rear garden and off-street parking add useful outside space in a built-up setting.
Constructed in the mid-20th century with cavity walls and double glazing, the property appears structurally sound but would benefit from cosmetic updating to modernise kitchens, bathroom and finishes. Heating is mains-gas boiler and radiators; services have not been independently tested and should be checked. Council Tax is low (Band A), helping running costs.
The location is convenient for local amenities, regular bus links and several secondary schools rated Good; one nearby primary requires improvement. Mobile signal and broadband speeds are strong, which suits home working or streaming. There is no notable flood risk and the plot size is a decent city garden.
Buyers should note the wider area is classified as working‑class terraces with average crime levels and modest local income indicators. For an investor or owner-occupier prepared to refresh fixtures and finishes, this property presents sensible value and straightforward potential to personalise and add value.
3 bedroom semi-detached house for sale in Earlsdon Avenue, Acklam, TS5 — £160,000 • 3 bed • 1 bath • 770 ft²
3 bedroom semi-detached house for sale in Stoneleigh Avenue, Middlesbrough, North Yorkshire, TS5 — £149,995 • 3 bed • 1 bath • 838 ft²
3 bedroom semi-detached house for sale in Chalford Oaks, Acklam, TS5 — £220,000 • 3 bed • 1 bath • 1059 ft²
3 bedroom semi-detached house for sale in Kader Avenue, Acklam, TS5 — £165,000 • 3 bed • 2 bath • 777 ft²
3 bedroom semi-detached house for sale in Trimdon Avenue, Middlesbrough, North Yorkshire, TS5 — £175,000 • 3 bed • 1 bath • 843 ft²
3 bedroom semi-detached house for sale in Acorn Drive, Middlesbrough, North Yorkshire, TS5 — £165,000 • 3 bed • 1 bath • 902 ft²


























































































