Spacious, modern family home with garden and double garage close to Norwich.
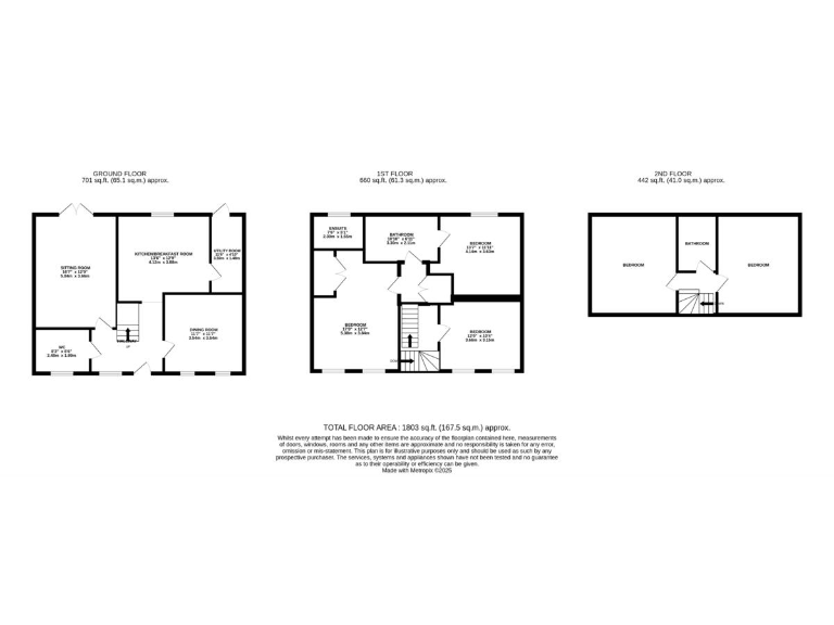
Five bedrooms including master with ensuite
Modern fitted kitchen with integrated appliances
Separate utility room and formal dining room
Three bathrooms plus separate WC
Spacious rear garden and low-maintenance frontage
Large driveway and double garage for off-street parking
Built 2012 onwards; double glazing and mains gas central heating
Average room sizes — not oversized reception rooms
Set on a generous plot in sought-after Costessey, this five-bedroom detached house balances family-sized space with modern convenience. Constructed after 2012, the home benefits from double glazing, mains gas heating and a well-planned layout that suits busy households.
The ground floor centres on a modern fitted kitchen with integrated appliances and an adjacent utility room for practical daily use. Living spaces include a spacious lounge and a formal dining room ideal for family meals or entertaining. There are three bathrooms in total, including a master ensuite and a Jack-and-Jill arrangement, plus a separate wc for convenience.
Outside, the sizable rear garden and low-maintenance frontage provide private outdoor space and play areas. Parking is straightforward with a large driveway and a double garage. The location scores highly for transport links into Norwich, fast broadband, low crime and nearby good schools — strong practical benefits for families.
This is a comfortable, contemporary family home that will suit buyers seeking immediate move-in condition and space for children. Room sizes are broadly average, so buyers wanting very large reception spaces should note the footprint is typical for modern suburban family housing.
5 bedroom detached house for sale in Knappers Way, Costessey, Norwich, Norfolk, NR8 — £375,000 • 5 bed • 3 bath • 2138 ft²
5 bedroom detached house for sale in Bittern Road, Costessey, Norwich, NR8 — £380,000 • 5 bed • 2 bath • 1020 ft²
5 bedroom detached house for sale in Knappers Way, Costessey, NR8 — £375,000 • 5 bed • 3 bath • 1908 ft²
4 bedroom detached house for sale in Stockwell Road, Norwich, NR8 — £325,000 • 4 bed • 2 bath • 1767 ft²
4 bedroom detached house for sale in The Street, Costessey, Norwich, NR8 — £350,000 • 4 bed • 2 bath • 1040 ft²
5 bedroom detached house for sale in Poethlyn Drive, Costessey, NR8 — £390,000 • 5 bed • 4 bath • 1730 ft²






























































































































