**Standout Features:**
- Charming two-bedroom end terrace cottage.
- Traditional Victorian elements with potential for renovation.
- Spacious garden with summer house and utility courtyard.
- No allocated parking but communal parking available.
- Council tax band B with low crime rates; perfect for families or first-time buyers.
- Fast broadband and excellent mobile signal.
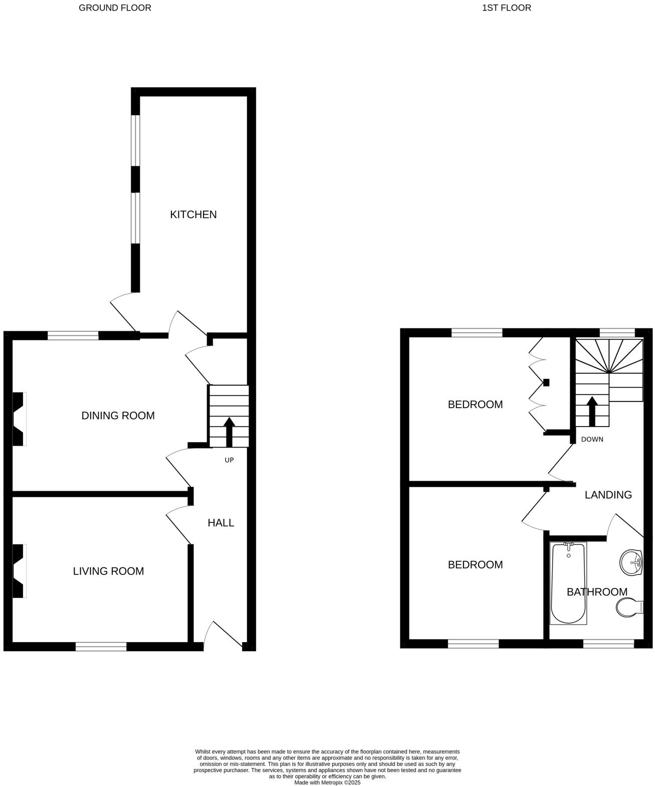
This quaint end terrace cottage at Tremeadow Terrace, Hayle, presents an enticing opportunity for those seeking a cozy retreat with character. The ground floor features a bright living room and a dining area with original fireplaces, offering charm and potential for modern updates. Upstairs, two bedrooms and a well-placed bathroom create a comfortable living arrangement, while the spacious garden provides an inviting outdoor space with a summer house for relaxation or hobbies.
Although the property requires maintenance and some renovations, particularly with the garden and interior updates, it holds significant potential for customization, making it ideal for first-time buyers or investors looking for value in a serene neighborhood. The community boasts low crime rates and essential amenities nearby, providing a perfect family-friendly atmosphere. With a strong sense of exclusivity in this unique location, properties like this often move quickly—schedule your viewing today and envision the possibilities!
3 bedroom end of terrace house for sale in Foundry Square, Hayle, Cornwall, TR27 4AE, TR27 — £260,000 • 3 bed • 1 bath • 883 ft²
3 bedroom terraced house for sale in Three bedroom home, Hayle, TR27 — £295,000 • 3 bed • 1 bath • 644 ft²
2 bedroom end of terrace house for sale in Phillack Hill, Phillack, TR27 5AD, TR27 — £250,000 • 2 bed • 1 bath • 710 ft²
3 bedroom terraced house for sale in Fore Street, Hayle, TR27 — £235,000 • 3 bed • 1 bath • 1023 ft²
3 bedroom terraced house for sale in Commercial Road, Hayle, TR27 4DH, TR27 — £290,000 • 3 bed • 1 bath • 969 ft²
2 bedroom terraced house for sale in Caroline Row, Hayle, Cornwall, TR27 — £265,000 • 2 bed • 1 bath • 942 ft²














































