Spacious modern four-bedroom home beside Waltham Golf Course, ideal for family life..
- Modern open-plan kitchen-living area with vaulted ceiling and French doors
- Dual-aspect lounge with garden access and contemporary inset fire
- Principal bedroom with study area and en-suite bathroom
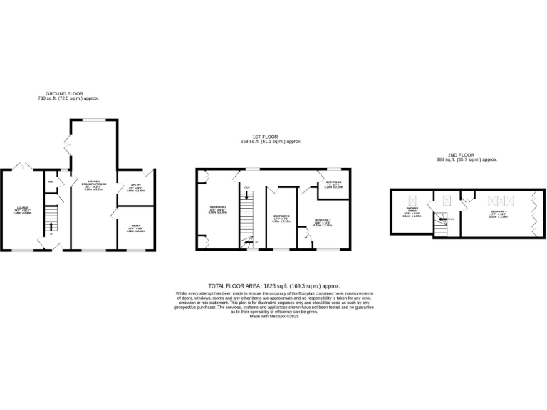
- Four bedrooms across three floors; flexible dining room/home study
- Detached double garage, gravel drive and large, enclosed rear garden
- Built post-2007 with double glazing and gas central heating
- Slow broadband speeds locally; check connectivity for remote work
- Tenure unspecified and three-storey layout may challenge limited mobility
This modern four-bedroom semi-detached home sits in a prestigious development beside Waltham Golf Course, offering comfortable family living across three floors. The recently fitted open-plan kitchen-living area with vaulted ceiling and French doors creates a bright social hub, while a separate dining room or study adds flexible space for work or play.
Well-proportioned bedrooms include a principal suite with study zone and en-suite, and two first-floor doubles fitted with modern wardrobes. Practical features include a utility room, cloakroom, under-stairs storage, and a detached double garage with gravel drive—ideal for families needing parking and storage.
The enclosed rear garden and paved patio provide a low-maintenance outdoor space for summer entertaining. The development’s low crime rate, proximity to several 'Good' primary and secondary schools, and nearby woodland make the location appealing for families and those seeking a relaxed, semi-rural lifestyle.
Notable practical points: broadband speeds in the area are slow and the property’s tenure is unspecified, which should be confirmed. The three-storey layout may be less suitable for limited mobility despite the home being marketed with retirement appeal. Overall, the house presents comfortable, modern living with sensible family-focused amenities and some due-diligence items to check before purchase.
4 bedroom detached house for sale in Golf Course Lane, Waltham, DN37 — £595,000 • 4 bed • 2 bath • 1953 ft²
4 bedroom detached house for sale in Wheatfield Drive, Waltham, North East Lincs, DN37 — £340,000 • 4 bed • 2 bath • 1650 ft²
5 bedroom detached house for sale in Golf Course Lane, Waltham, Grimsby, Lincolnshire, DN37 — £695,000 • 5 bed • 3 bath
4 bedroom semi-detached house for sale in Plot 50, The Green, Waltham, DN37 — £295,000 • 4 bed • 2 bath • 1444 ft²
4 bedroom detached house for sale in The Drive, Waltham, Grimsby, DN37 — £680,000 • 4 bed • 2 bath • 2070 ft²
4 bedroom detached house for sale in Ings Lane, Waltham , DN37 — £595,000 • 4 bed • 2 bath • 3269 ft²


























































































































