Affordable single-level home near coast and village amenities.
No upper chain — freehold bungalow ready to move into
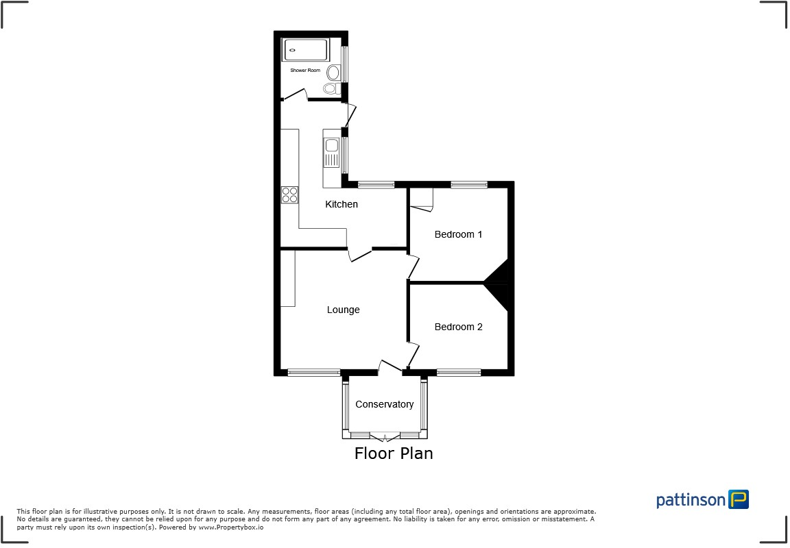
This two-bedroom mid-20th-century bungalow offers single-level, turn-key living close to the village, coast and local amenities. The layout includes a spacious kitchen/dining room, lounge, conservatory and two double bedrooms — practical accommodation for first-time buyers or downsizers seeking low-maintenance living.
The property is presented in good order with UPVC double glazing, a recently upgraded combi boiler on a service plan and a refitted bathroom. A partially boarded loft with hatch and ladder provides extra storage, while an enclosed front garden and private rear yard keep external maintenance minimal.
Location brings clear benefits — excellent mobile signal, fast broadband and nearby schools rated Good or Outstanding. Be aware of material local factors: the wider area shows high crime and very high deprivation, and the plot is small. The property is a mid-terrace bungalow constructed around 1930–1949, which may limit extension potential and means buyers should check structural/insulation specifics if planning major changes.
Offered freehold with no upper chain and very low council tax, this bungalow suits a buyer wanting an affordable, ready-to-move-in home or an investor seeking a straightforward let in a well-connected coastal village setting.
2 bedroom semi-detached bungalow for sale in Hardwick Street, Blackhall Colliery, Hartlepool, TS27 — £80,000 • 2 bed • 1 bath • 528 ft²
2 bedroom terraced bungalow for sale in Blackthorne Avenue, Horden, PETERLEE, SR8 — £100,000 • 2 bed • 1 bath • 797 ft²
3 bedroom bungalow for sale in Meadow Avenue, Blackhall Colliery, TS27 — £110,000 • 3 bed • 1 bath
2 bedroom terraced bungalow for sale in Bethune Avenue, Seaham, County Durham, SR7 — £105,000 • 2 bed • 1 bath
2 bedroom detached bungalow for sale in Stockton Road, Hartlepool, TS25 — £220,000 • 2 bed • 1 bath • 862 ft²
3 bedroom detached bungalow for sale in Amble Close, Hartlepool, TS26 — £259,500 • 3 bed • 2 bath • 1092 ft²


























































































