Renovation opportunity with gardens and strong transport links.
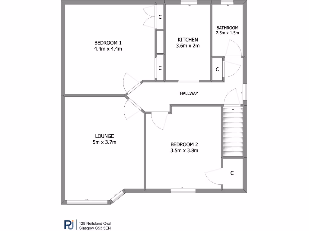
Upper cottage main-door flat with private side and rear gardens
Two double bedrooms with integrated storage, one bathroom
Gas central heating and timber-framed windows, EPC band D
Requires full modernisation; visible damp/mould and water damage
Peeling paint and general wear — renovation costs expected
668 sq ft freehold — good scope for value-add refurbishment
Excellent transport links to M8/M77 and local train/bus services
Located in a very deprived area — consider resale/rental implications
Set on the Southside in an established pocket of Glasgow, this main-door upper cottage flat offers practical first-step or investment potential. The layout includes a front lounge with period fireplace, a fitted galley kitchen, two double bedrooms with storage and a three-piece bathroom. The property benefits from gas central heating, timber windows and private side and rear gardens.
The flat requires a full programme of modernisation: visible damp/mould and water damage in the living room, peeling paint and general wear throughout. These issues will need addressing along with cosmetic upgrades to realise the property’s potential. The current condition presents scope for a value-add refurbishment or a tailored renovation to suit a buyer’s tastes.
At approximately 668 sq ft and offered freehold, the home sits close to good transport links (M8/M77 and local train/bus routes) and local amenities including supermarkets and schools. Energy rating is D. Be mindful the property is located in a very deprived area, which may affect resale dynamics and rental demand but also creates opportunity for buyers prepared to invest in improvement.
2 bedroom flat for sale in Houston Road, Houston, PA6 — £99,000 • 2 bed • 1 bath • 712 ft²
2 bedroom flat for sale in Crowhill Street, Glasgow, G22 — £69,995 • 2 bed • 1 bath
2 bedroom flat for sale in Luncarty Street, Sandyhills, Glasgow, G32 — £120,000 • 2 bed • 1 bath • 657 ft²
2 bedroom flat for sale in Threestonehill Avenue, G32 0LX, G32 — £99,995 • 2 bed • 1 bath • 637 ft²
2 bedroom flat for sale in Cavin Road, Glasgow, Glasgow City, G45 — £85,000 • 2 bed • 1 bath • 684 ft²
2 bedroom flat for sale in Hopeman Street, Thornliebank, Glasgow, G46 — £90,000 • 2 bed • 1 bath • 764 ft²






































































































