Extensive three‑storey detached home with pool, woodland backdrop and large garden..
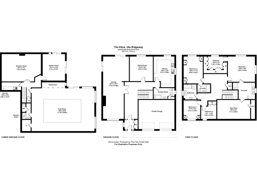
- Over 5,500 sq ft of accommodation across three floors
- 4 bedrooms, two en suites and modern family bathroom
- 38ft dual-aspect lounge with wrap-around balcony
- Lower ground: 38ft pool room, snooker room, garden room
- South-facing garden backing onto tree-lined woodland
- Large driveway and double garage with extensive parking
- EPC C; glazing pre-2002 — potential for thermal upgrades
- Slow broadband and nearby area deprivation noted
An individually designed, extremely large detached family home offering over 5,500 sq ft across three floors, set at the head of a quiet close and backing onto Coedyfelin woodlands. The house delivers grand reception spaces — a 38ft dual-aspect lounge with wrap-around balcony, a formal sitting room, and a 19ft fitted kitchen/breakfast room — plus flexible lower-ground leisure rooms including a 38ft pool room, snooker room and garden room with patio access.
Externally the property sits on a large plot with a south-facing rear garden that directly adjoins mature woodland, a wide keyblock driveway, and a double garage with twin doors providing substantial private parking. Many principal rooms are bright and spacious; fitted wardrobes, gas central heating and mostly double glazing are already in place.
Practical points to note: the home was constructed in the 1980s, glazing was installed before 2002 and the EPC is C, so there may be scope for improving thermal efficiency. Broadband speeds are reported as slow and the wider area data includes a note of very deprived wards nearby despite the local classification as affluent; buyers should check local services and connectivity if important.
This property suits a family seeking generous indoor/outdoor living and entertaining space, or buyers looking for a distinctive executive home with leisure facilities. Chain-free sale offers a straightforward purchase route, but the size and age of the house mean some modernisation or targeted upgrades could add substantial value.
5 bedroom detached house for sale in Ridgeway, Lisvane, Cardiff, CF14 — £725,000 • 5 bed • 2 bath • 2002 ft²
4 bedroom detached house for sale in Wenallt Road, Rhiwbina, CARDIFF, CF14 — £1,200,000 • 4 bed • 3 bath • 2720 ft²
4 bedroom detached house for sale in Usk Road, Llanishen, Cardiff, CF14 — £875,000 • 4 bed • 4 bath • 2896 ft²
6 bedroom detached house for sale in Castleton Rise, Castleton, CF3 — £1,100,000 • 6 bed • 5 bath • 2638 ft²
4 bedroom detached house for sale in Somerset Lane, Merthyr Tydfil, CF48 — £580,000 • 4 bed • 3 bath • 4055 ft²
4 bedroom detached house for sale in Llyn Pandy, Pandy Road, Bedwas, CF83 — £595,000 • 4 bed • 2 bath • 1981 ft²


































































































































