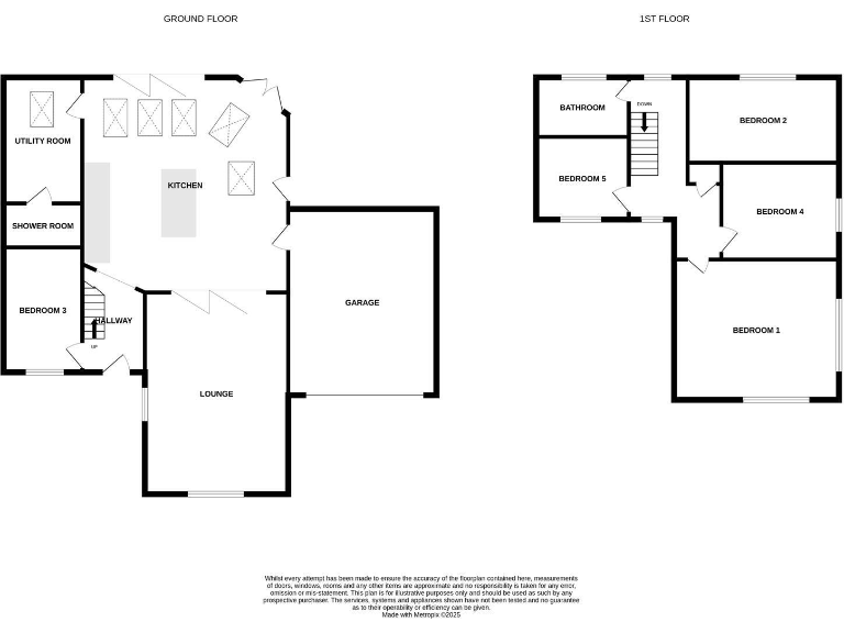
Secure gated plot with drive-through garage and large private garden.
Five bedrooms with versatile ground-floor bedroom or home office
This recently renovated five-bedroom detached home on Church Green suits growing families seeking space and modern finishes. Secure electric gates lead to a large brick‑weave driveway and a unique drive-through garage that opens into an enclosed rear garden — ideal for children, pets and outdoor entertaining. The open-plan kitchen/dining room with island, high ceilings and Velux windows is the social centre for family life.
Practical comforts include underfloor heating in the kitchen, UPVC double glazing, a utility room, and fast full‑fibre broadband. Accommodation is versatile: a ground-floor bedroom could be used as a guest room or home office while four well-proportioned first-floor bedrooms serve family sleeping needs.
Buyers should note there are two bathrooms for five bedrooms, which may require planning around morning routines. Council Tax band D and average mobile signal are factual considerations. Overall, this freehold property on a large plot blends contemporary fixtures with family-friendly layout and strong local schools nearby.
5 bedroom detached house for sale in Church Green, Norwich, NR7 — £525,000 • 5 bed • 2 bath • 1561 ft²
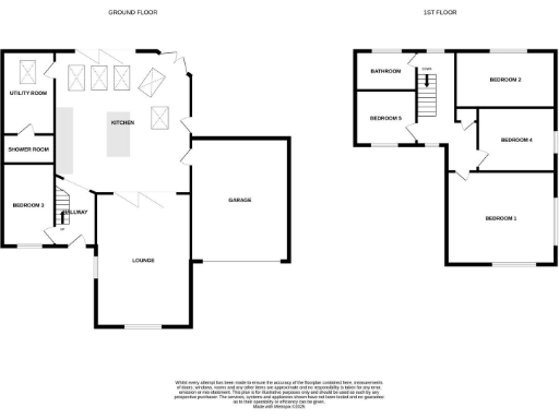
5 bedroom detached house for sale in Church Green, Norwich, NR7 — £525,000 • 5 bed • 2 bath • 1947 ft²
5 bedroom detached house for sale in Greylag Close, Sprowston, NR7 — £440,000 • 5 bed • 4 bath • 1755 ft²
5 bedroom detached house for sale in Moorhen Close, Sprowston, NR7 — £475,000 • 5 bed • 3 bath • 1717 ft²
4 bedroom detached house for sale in Russell Avenue, Sprowston, NR7 — £750,000 • 4 bed • 5 bath • 3489 ft²
4 bedroom detached house for sale in Windsor Park Gardens, Sprowston, NR6 — £500,000 • 4 bed • 3 bath • 1680 ft²






































































































































































