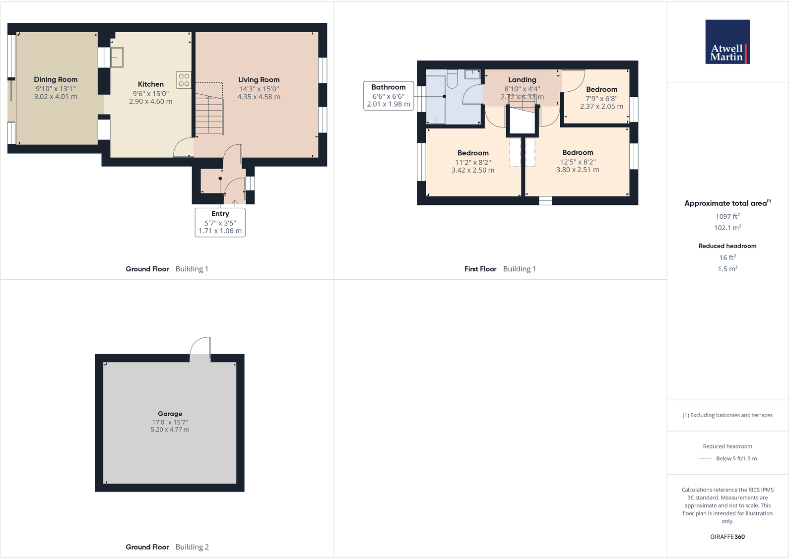
Practical three-bedroom semi in south Calne — driveway, garage and walkable to schools..
- Three bedrooms: two doubles and one single, suitable for family or home office
- Single contemporary bathroom (shower over bath) only
- Driveway parking for 2–3 cars plus single garage with electrics
- Small plot; rear garden mainly shingle with raised astroturf (low maintenance)
- Built early 1990s; double glazing present (install date unknown)
- Mains gas boiler and radiators; fast broadband and excellent mobile signal
- Very low local crime and no recorded flood risk
- Tenure not specified; check legal/title details before purchase
Tucked away on a quiet south-Calne street, this three-bedroom semi-detached home offers straightforward family living with good natural light and practical space. The living room and adjacent dining area flow to an enclosed rear garden; the kitchen has plenty of storage and space for freestanding appliances. Driveway parking for two to three cars and a single garage with electrics add everyday convenience.
Upstairs are two comfortable double bedrooms and a third single room suitable for a child, office or guest room, plus a contemporary bathroom with shower-over-bath. The plot is small and mainly laid to shingle with a raised astroturf area—low-maintenance but limited scope for large-scale landscaping.
Practical positives include mains gas central heating with boiler and radiators, double glazing, fast broadband, excellent mobile signal and very low local crime. There is no recorded flood risk and local schools (including Kingsbury Green Academy) are within walking distance, making this a sensible pick for families and commuters.
Notable limitations: the property has a single bathroom, a small plot, and a single garage only. Tenure is not specified in the provided details. Overall, this is an affordable, well-located home from the early 1990s that suits buyers seeking a low-maintenance family house in a very affluent, suburban part of Calne.
3 bedroom semi-detached house for sale in Ridgemead, Calne, SN11 — £265,000 • 3 bed • 1 bath • 937 ft²
3 bedroom semi-detached house for sale in Heron Close, Calne, SN11 — £250,000 • 3 bed • 1 bath • 776 ft²
3 bedroom semi-detached house for sale in Rochdale Avenue, Calne, SN11 — £240,000 • 3 bed • 1 bath • 649 ft²
3 bedroom end of terrace house for sale in Station Road, Calne, SN11 — £315,000 • 3 bed • 2 bath • 551 ft²
3 bedroom semi-detached house for sale in Westerham Walk, Calne, SN11 — £289,000 • 3 bed • 1 bath • 905 ft²
3 bedroom detached house for sale in Magnolia Rise, Calne, SN11 — £350,000 • 3 bed • 2 bath • 743 ft²






























































